EasyManua.ls Logo

SCS Sentinel SOFIA M1E8 TOP B - Page 39

SCS Sentinel SOFIA M1E8 TOP B
Print Icon
To Next Page IconTo Next Page
To Next Page IconTo Next Page
To Previous Page IconTo Previous Page
To Previous Page IconTo Previous Page
Loading...
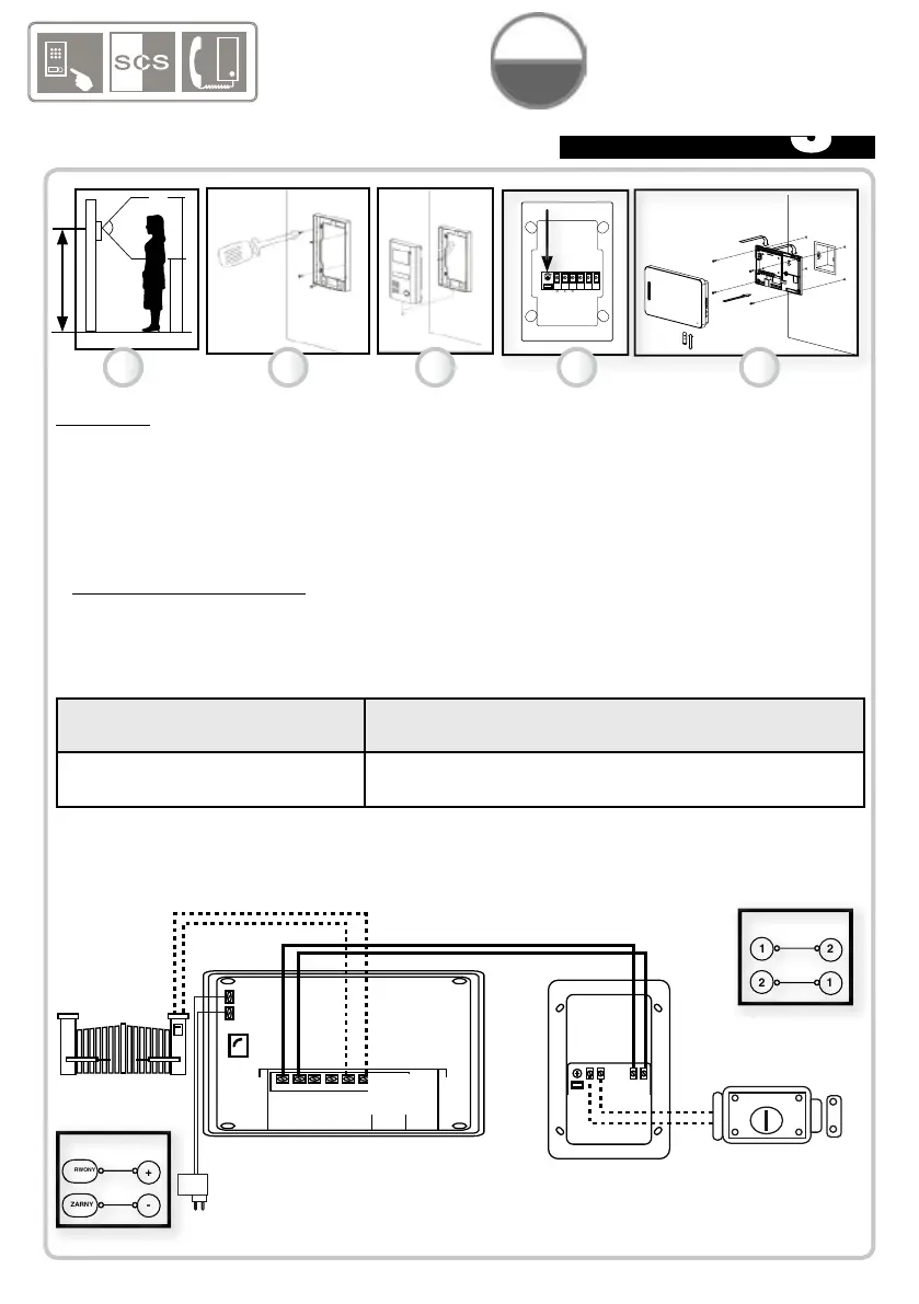
Mocowanie
1) Przymocować kamerę zewnętrzną na wysokości 1,5 metra, montaż natynkowy na płaskiej ścianie.
2) Najpierw należy przymocować tylną podstawę. Na końcu należy przykręcić wkręty w dolnej części
panelu.
3) Połączyć przewody kamery (zgodnie z poniższym schematem) i umieścić kamerę na podstawie.
Nie należy montować kamery w miejscu bezpośrednio narażonym na działanie deszczu lub słońca.
Po zamontowaniu i sprawdzeniu należy umieścić silikonową uszczelkę na górze i po bokach kamery
zewnętrznej (nie na dole), aby zapobiec przedostaniu się wody.
4) Ważne : Regulacja Dzwonek.
5) Przymocować tylną podstawę monitora (na wysokości 1,5 metra na płaskiej ścianie).
Połączyć przewody i umieścić monitor na podstawie.
PRZEKRÓJ PRZEWODÓW :
Połączenie monitor-kamera
Połączeni kamera-zatrzask lub zamek elektryczny.
Połączenie monitor -mechanizm
d 0 do 50 metrów: kabel 0.75
mm²
Od 0 do 10 metrów: zastosować kabel RVV2*1mm².
SCHEMAT OKABLOWANIA :
MOCOWANIE I ŁĄCZENIE ELEMENTÓW
3
POLSKI
1234
56
+
-
A1
GN 18V
A2 B1
B2
C1
C2
GND
VD
Monitor E8
Zasilacz 12
wolt
Zamek lub zatrzask
elektryczny (opcja)
12V / 700 mA
1.5 m
1 2 3
123456
4 5
Kamera M1
1
2
2
1
Monitor
Kamera
CZERWONY
CZARNY
+
-
Transformator Monitor

Related product manuals