EasyManua.ls Logo

SCS Sentinel SOFIA M1E8 TOP B - Page 4

SCS Sentinel SOFIA M1E8 TOP B
Print Icon
To Next Page IconTo Next Page
To Next Page IconTo Next Page
To Previous Page IconTo Previous Page
To Previous Page IconTo Previous Page
Loading...
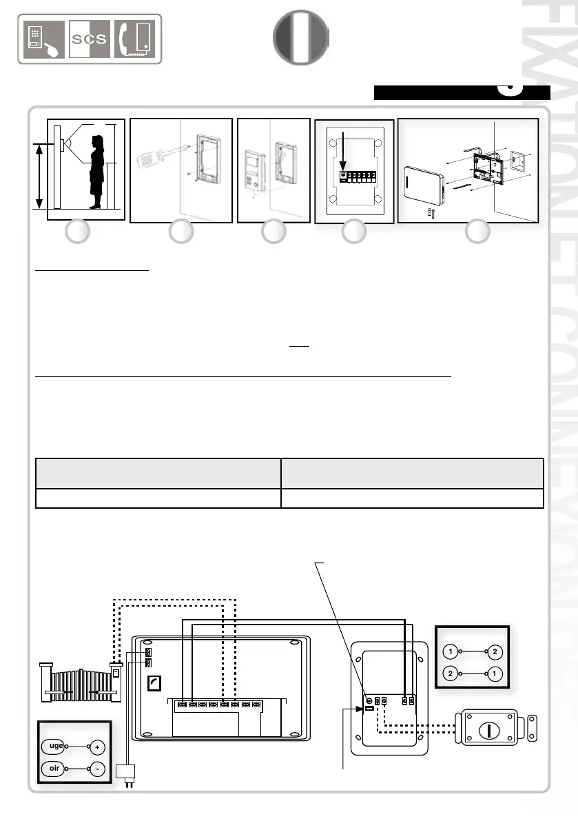
FIXATION ET CONNEXION DES
Fixation de la platine
1) Fixer la caméra extérieure à 1.5 mètre de hauteur en applique sur un mur plat.
2) Fixer d’abord le support arrière. Terminer en vissant la vis en bas de la platine.
3) Connecter les ls de la caméra (comme indiqué sur le schéma ci-dessous) et venir encher
la caméra sur son support. Ne pas installer la caméra à un endroit directement en contact
avec la pluie ou le soleil. Après installation et test, placer un joint silicone transparent sur le
haut et les cotés de la caméra extérieure (pas sur le bas) pour éviter tout risque d’inltration.
4) IMPORTANT : régler le volume de la mélodie avant de xer le portier au mur.
5) Fixer le partie arrière du moniteur (à 1.5 mètres de hauteur sur un mur plat).
Connecter vos ls et venir encastrer le moniteur sur sa partie arrière.
6) ENLEVER LE FILM PROTECTEUR DE VOTRE MONITEUR.
SECTION DES FILS:
Liaison caméra - moniteur
Liaison Caméra - Serrure / gâche
Liaison moniteur - automatisme
De 0 à 50 mètres: utilisation du câble 0.75 mm² De 0 à 10 mètres: utilisation du câble 1 mm²
SCHEMA DE CÂBLAGE :
FIXATION ET CONNEXION DES ÉLÉMENTS
3
FRANCAIS
1.5 m
1234
56
+
-
A1
GN 18V
A2 B1
B2
C1
C2
GND
VD
MONITEUR E8
CAMERA M1
ADAPTATEUR
18VOLTS
12V / 700 mA
Si un larsen se fait
entendre, ajuster
ce volume pour le
faire disparaitre
1 2 3 54
123456
1
2
2
1
Moniteur
Camera
rouge
noir
+
-
Transformateur Moniteur
Réglage temps
d’activation serrure

Related product manuals