EasyManua.ls Logo

Seakeeper 6 - Page 17

Seakeeper 6
45 pages
Print Icon
To Next Page IconTo Next Page
To Next Page IconTo Next Page
To Previous Page IconTo Previous Page
To Previous Page IconTo Previous Page
Loading...
INSTALLATION
MANUAL
Product: Document #: Rev: Page:
SEAKEEPER 6 90402 1 15 of 15
Section 1: MECHANICAL INSTALLATION
1.6.2 Fiberglass Hull Preparation
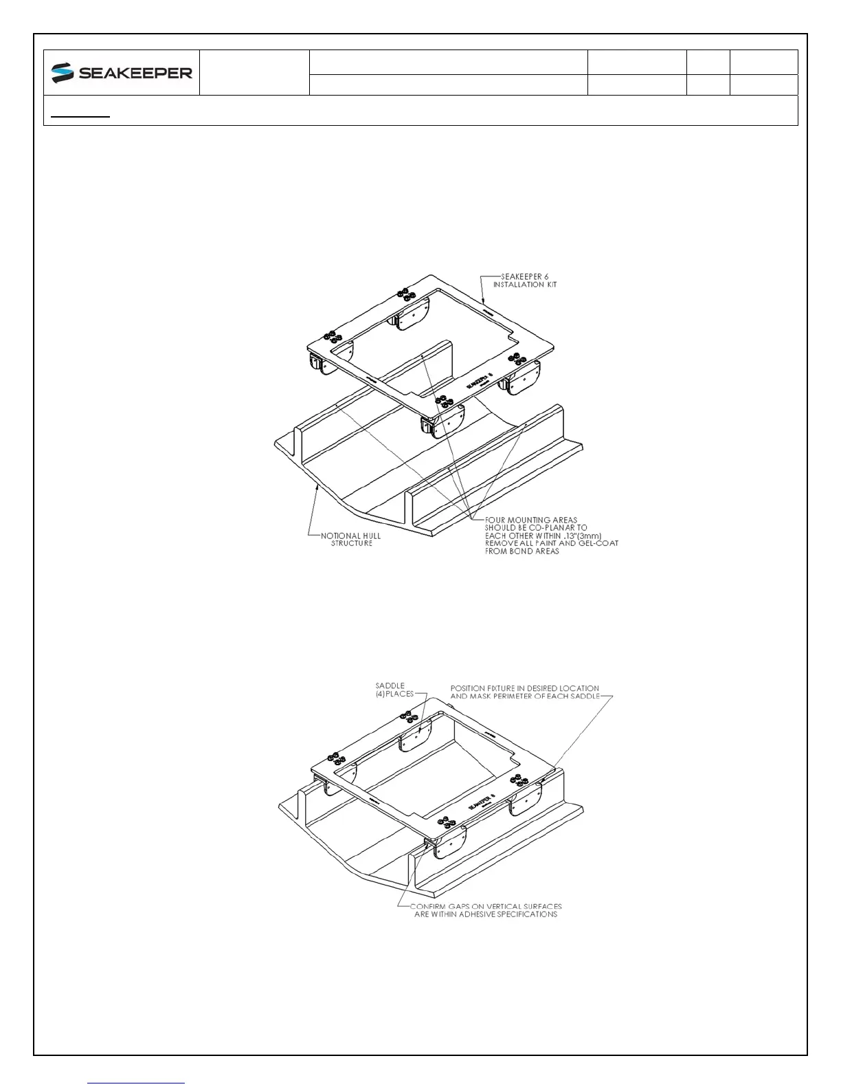
1) Position installation fixture (Fig 8) on hull girders noting recommended clearances for
maintenance from Figure 2. Check that the screws fastening the saddles to the installation
fixture are tight (Fig 6).
2) Mask hull area (Fig 9) around foundation saddles for easy clean-up and to create outline
of surface area to receive adhesive as (Fig 8). Insure that the bond gap is within
Seakeeper’s recommended thickness, or 3mm if using Plexus MA590.
3) Raise fixture clear of foundation. Check all four mounting areas are co-planar to within
.13” (3 mm) to each other, as well as parallel to the water line plane, as shown in Fig 8.
FIGURE 8 - INSTALLING FIXTURE ON HULL
FIGURE 9 - MASKING PERIMETER OF SADDLES

Other manuals for Seakeeper 6