EasyManua.ls Logo

Sharp R-6280 - Page 19

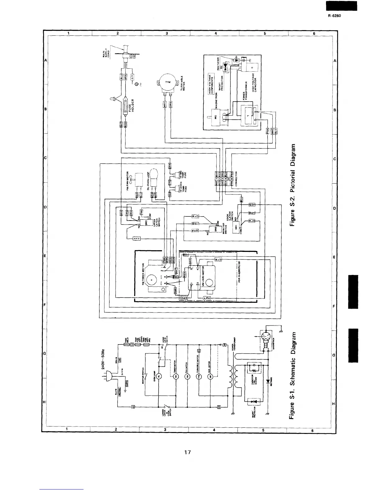
Sharp R-6280
24 pages
Print Icon
To Next Page IconTo Next Page
To Next Page IconTo Next Page
To Previous Page IconTo Previous Page
To Previous Page IconTo Previous Page
Loading...
R-6280
C
F
Gl
H
I
i
1
2
3
4
5
6
1
:
TTM
0 !.
:E
24
0
t 0
I %
r
I
IB
IC
iH
1
2
3 4
/
5
6

Related product manuals