EasyManua.ls Logo

Sharp SJ-220N - Page 28

Sharp SJ-220N
92 pages
Print Icon
To Next Page IconTo Next Page
To Next Page IconTo Next Page
To Previous Page IconTo Previous Page
To Previous Page IconTo Previous Page
Loading...
28
GRE
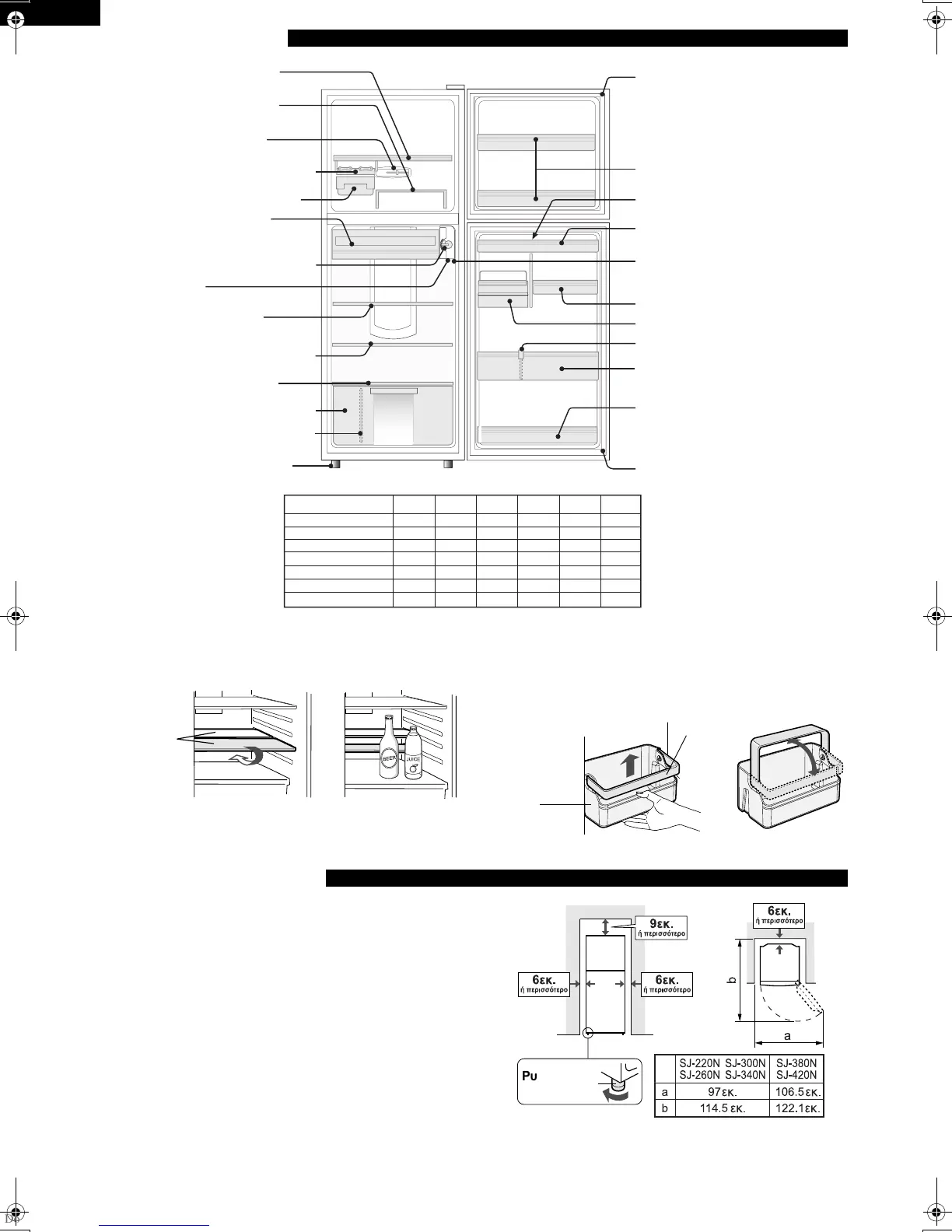
ΠΕΡΙΓΡΑΦΗ
Μισό ράφι
Η θέση του ραφιού μπορεί να ρυθμιστεί ανάλογα με το
μέγεθος των τροφίμων που αποθηκεύoνται.
Θήκη μεταφοράς
Αυτή η μονάδα είναι μετακινούμενη και μπορείτε να τη
μεταφέρετε στην κουζίνα ή στο τραπέζι. Είναι σχεδιασμένη
για αποθήκευση καρυκευμάτων και μπαχαρικών.
Το χερούλι μπορεί να παραμορφωθεί ή να σπάσει εάν το
τραβήξετε δυνατά.
ΕΓΚΑΤΑΣΤΑΣΗ
1. Το ψυγείο αυτό είναι μη σταθερού τύπου. Παρακαλούμε
αφήστε αρκετό χώρο εξαερισμού γύρω από το ψυγείο.
Αυτό το σχέδιο δείχνει τον ελάχιστο χώρο που
χρειάζεται προκειμένου να διατηρηθεί η ικανότητα
ψύξης.
Το ψυγείο λειτουργεί με μικρότερη κατανάλωση
ρεύματος εάν αφήσετε μεγαλύτερο χώρο.
Εάν το ψυγείο λειτουργεί στο χώρο που
απεικονίζεται
παρακάτω, αυτό γίνεται αιτία βλάβης.
2. Χρησιμοποιώντας το μπροστινό Ρυθμιζόμενο πόδι,
βεβαιωθείτε ότι το ψυγείο είναι τοποθετημένο σταθερά
και επίπεδα πάνω στο δάπεδο.
ΣΗΜΕΙΩΣΗ:
Τοποθετήστε τον ψυκτήρα σας έτσι ώστε η πρίζα να είναι
προσιτή.
Μην εκθέτετε το ψυγείο σας απευθείας στο ηλιακό φως.
Μην το τοποθετείτε κοντά σε συσκευές παραγωγής
θερμότητας.
Μην τοποθετήτε σε άμεση επαφή με το έδαφος.
Παρέχετε την κατάλληλη βάση.
Πρίν χρησιμοποιείσετε τον ψυγείου σας
Καθαρίστε τα εσωτερικά μέρη με ένα ύφασμα που είναι
βρεγμένο σε θερμό νερό. Εάν χρησιμοποιείτε
σαπουνόνερο, σκουπίστε το επιμελώς με νερό.
Ράφι καταψύκτη
Μαγνητικό κλείστρο
πόρτας
Θύλακας πόρτας *
Θύλακας πόρτας *
Μαγνητικό κλείστρο
πόρτας
Θήκη αυγών *
Αβγοθήκη
Διακόπτης φωτός
Μικρός θύλακας *
< SJ-380N >
Θήκη μεταφοράς *
Πώμα μπουκαλιού *
Θήκη μπουκαλιών
Ράφι καταψύκτη
(κινητό)
Κουμπί ελέγχου
θερμοκρασίας καταψύκτη
Κουμπί ελέγχου
θερμοκρασίας ψυγείου
Φως
Ράφι ψυγείου
Ράφι λαχανικών
Διατηρητής λαχανικών
Διαχωριστική πλάκα *
Ρυθμιζόμενο πόδι
Μισό ράφι (1 ζεύγος) *
Παρασκευαστής πάγου
Δοχείο για παγάκια
Χώρος νωπών
προϊόντων
SJ-300N SJ-340N SJ-380N SJ-420N
*
Όνομα μοντέλου
11
11
11
1211
Θήκη αυγών
Θήκη μεταφοράς
Μικρός θύλακας
Πώμα μπουκαλιού
-
--
11
SJ-260N
1
-
-
1
SJ-220N
-
-
-
-
-
11
11
3333
Μισό ράφι
Διαχωριστική πλάκα
Θύλακας πόρτας
1
--
2
-
-
2
-
-
1
Μισό ράφι
Θήκη
μεταφοράς
αφαιρέστε
Χερούλι
Μην αφαιρείτε με χερούλι.
=
>
Ρυθμιζόμενο
πόδι
(A765)27‑31GRE3.fmPage28Thursday,February1,20073:41PM

Related product manuals