EasyManua.ls Logo

Sharp SJ-220N - Page 58

Sharp SJ-220N
92 pages
Print Icon
To Next Page IconTo Next Page
To Next Page IconTo Next Page
To Previous Page IconTo Previous Page
To Previous Page IconTo Previous Page
Loading...
58
CZE
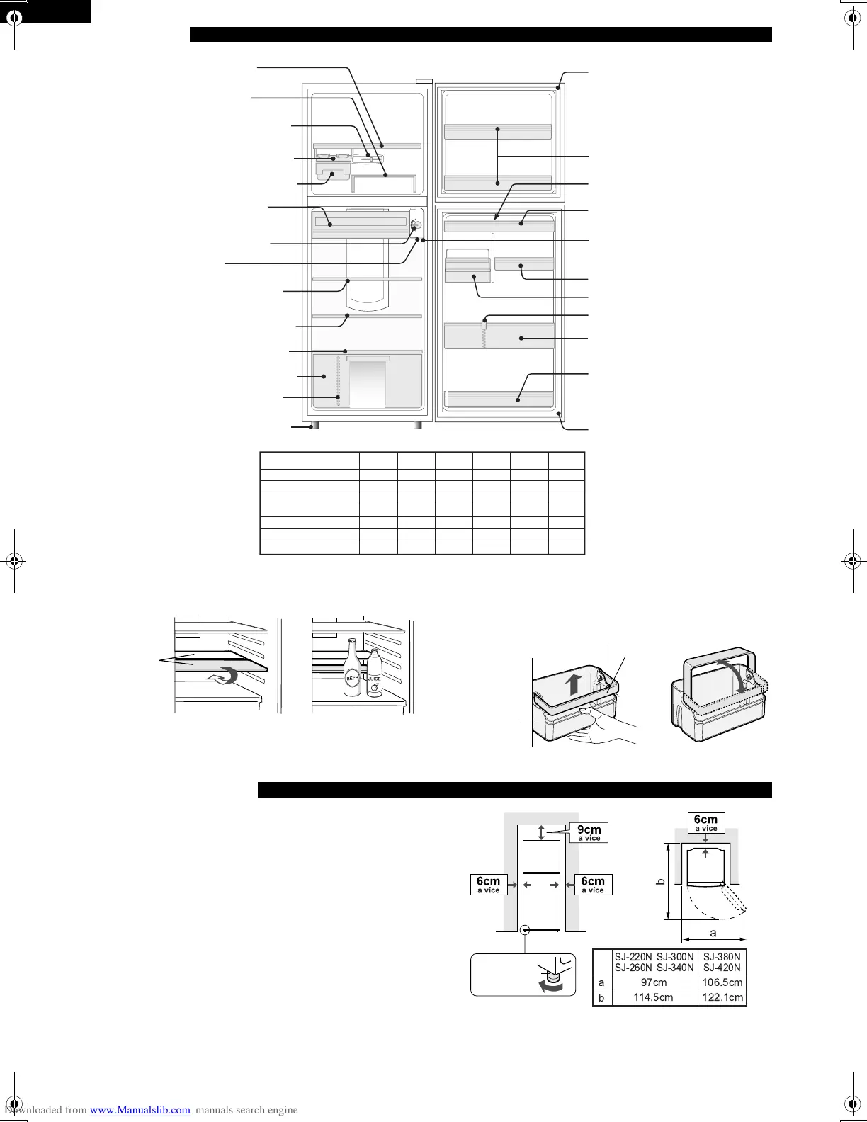
POPIS
Poloviční polička
Umístění poličky lze nastavit podle uložených potravin.
Přenosná schránka
Tento díl je vyjímatelný a lze jej přenést do kuchyně nebo
na stůl. Je určen pro kořenicí přísady nebo ochucovadla.
Rukojet’ se může při silném zatažení deformovat nebo
prasknout.
INSTALACE
1. Chladnička je ve volně stojícím provedení. Ponechte
kolem ní prosím odpovídající místo, aby mohla větrat.
Na obrázku je znázorněn minimální prostor nutný pro
zachování chladicích schopností.
Pokud ponecháte kolem chladničky více volného
místa, bude mít při provozu menší spotřebu.
Používání chladničky v menším prostoru, než je
uveden na obrázku, může být příčinou poruchy.
2. Použití přední nastavitelné nožičky zajišt’uje, že
chladnice stoji pevně a vodorovně na podlaze.
POZNÁMKA:
Umístění Vaší chladničky s mrazákem tak, aby byla
přístupná zástrčka.
Chraňte Vaši chladnici před přímým slunečním světlem.
Neumíst'ujte vedle zařízení tepelného zdroje.
Neumist'ujte přímo na podlahu. Použijte vhodný
stojánek.
Před používáním Vaší chladnice
Vyčistěte vnitřní součásti hadříkem namočeným v teplé
vodě. Jestliže použijete mýdlovou vodu, otřete je znovu
čistou vodou.
Police mrazáku
Magnetický uzávěr
dveř
Polička ve dveřích *
Polička ve dveřích *
Magnetický uzávěr
dveř
Jamka na vejce *
Polička na vejce
Vypínač světla
Malá přihrádka *
< SJ-380N >
Přenosná schránka *
Zarážka na láhve *
Polička na láhve
Police mrazáku
(přemístitelná)
Točítko na nastavení
teploty mrazáku
Točítko na nastavení
teploty chladnice
Osvětlení
Police v chladničky
Polička pro zeleninu
Oddělení pro zeleninu
Oddělovací deska *
Nastavitelná nožička
Poloviční polička (1 pár) *
Mrazák na výrobu ledu
Krabice na výrobu ledu
Prostor udržující
potraviny čerstvé
SJ-300N SJ-340N SJ-380N SJ-420N
*
Název modelu
11
11
11
1211
Jamka na vejce
Přenosná schránka
Malá přihrádka
Zarážka na láhve
-
--
11
SJ-260N
1
-
-
1
SJ-220N
-
-
-
-
-
11
11
3333
Poloviční polička
Oddělovací deska
Polička ve dveřích
1
--
2
-
-
2
-
-
1
Polovič
polička
Přenosná
schránka
vyjmout Rukojet
Nevyjímejte za rukojet’.
Nastavitelná
nožička
SJ-380N
SJ-420N
SJ-300N
SJ-340N
SJ-220N
SJ-260N
a
b
97cm
114.5cm
106.5cm
122.1cm
(A765)57‑61CZE3.fmPage58Thursday,February1,20075:15PM

Related product manuals