EasyManua.ls Logo

Sharp SJ-K60M - Page 7

Sharp SJ-K60M
12 pages
Print Icon
To Next Page IconTo Next Page
To Next Page IconTo Next Page
To Previous Page IconTo Previous Page
To Previous Page IconTo Previous Page
Loading...
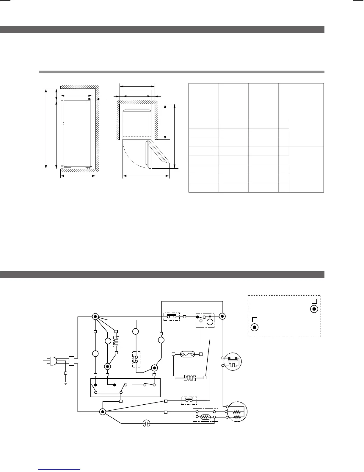
Installation
SJ-K70M, 70M, K68M, K65M, 65M, K63M, K60M, 60M, K58M
CONNECTOR
CONNECTED IN TERMINAL
BOX
:
:
:
:
:
:
:
:
:
:
B
Bk
Br
G
O
S-B
R
Y
W
G-Y
: BLUE(neutral)
: BLACK
: BROWN(live)
: GRAY
: ORANGE
: SKY-BLUE
: RED:
: YELLOW
: WHITE
: GREEN-
YELLOW(earth)
B
Bk
Br
G
O
S-B
R
Y
W
G-Y
Compressor
Starting relay
(P.T.C relay)
C
M
A
F-
Lamp
Lamp
(S-B)
(G-Y)
(Br)
(G)
(R)
(B)
(Y)
(O)
(Bk)
2
34
1
(W)
Door Switch
Fan Motor
R-Fan
Heater
R-Fan
Motor
R-Fan
Thermo.
Defrost Heater
Defrost Thermo.
Thermo.Fuse
F-Thermo.
Plug / Cord
Defrost Timer
FM
FM
TM
L
L
Protector
1
4
3
2
Running Capacitor
(Only for SJ-K68M, SJ-K63M, SJ-K58M)
90
a
H
b
e
60
D
(Unit:mm)
60 60
W
C
b
d
MODELS
SJ-PK60M
SJ-P60M
SJ-K60M
SJ-60M
SJ-PK58M
SJ-K58M
SJ-PK65M
SJ-P65M
SJ-K65M
SJ-65M
SJ-PK63M
SJ-K63M
SJ-PK70M
SJ-P70M
SJ-K70M
SJ-70M
SJ-PK68M
SJ-K68M
Outside
Dimensions
(mm)
Installation
Space(mm)
760760
880
880
1560
1560
1820
1620
1910
1710
740
740
800
760
880
1560
1290
1290
1290
1720
1810
740
800
800
H
D
a
b
c
d
e
W
UH«u*«
d« eOVO
öœu*«
©3® WOł—U)« œUFÐô«
©3® VO_d²« eOŠ
∑∂∞
±∏≤∞
∑¥∞
±π±∞
∏∞∞
∏∏∞
±µ∂∞
±≤π∞
∑∂∞
±∑≤∞
∑¥∞
±∏±∞
∏∞∞
∏∏∞
±µ∂∞
±≤π∞
∑∂∞
±∂≤∞
∑¥∞
±∑±∞
∏∞∞
∏∏∞
±µ∂∞
±≤π∞
©3 ∫ …bŠu«®
∂∞
∂∞
∂∞
π∞
„ö_« öOu jD
©‰b²F® ‚—“«
œuÝ«
wUIðdÐ
ÍËULÝ ‚—“«
dLŠ«
dHc«
iOЫ
©w{—«® dHc« ≠ dCš«
ÍœU—
©wŠ® wMÐ
wd ‚ËbM w qu
qu
bOK'« W«“≈ XR
WŠËd —uðu
—e¹dH« …—«dŠ rEM
w«Ë
Í—«dŠ “uO
bOK'« W«“≈ ÊU!Ý
bOK'« W«“≈ …—«dŠ rEM
qŠd® ¡b³« qŠdP.T.C.©
jžUC«
ÕU³B
—uðu
WŠËd
Włö¦«
ÊU!Ý
WŠËd
Włö¦«
…—«dŠ rEM
Włö¦« WŠËd
ÕU³B
—e¹dH«
»U³« ÕU²H
—UO²« —bB pKÝ
Ê«—Ëb« n¦J
q¹œuLK jI®SJ-K68M ¨SJ-K63M ¨SJ-K58M©
PK70M/K70M/En&Ar(Lay)_pm6.5me 03.3.19, 4:49 PM7

Related product manuals