EasyManua.ls Logo

Sharp SV-4328 - Page 6

Sharp SV-4328
158 pages
Print Icon
To Next Page IconTo Next Page
To Next Page IconTo Next Page
To Previous Page IconTo Previous Page
To Previous Page IconTo Previous Page
Loading...
6
PRECISION MACHINE TOOLS Ver 2 Maintenance Manual
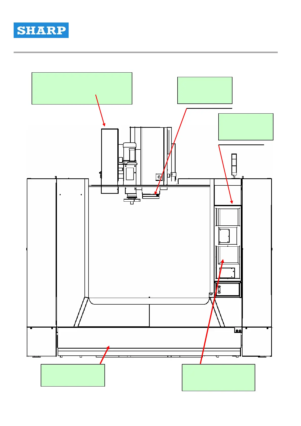
1-2 Routine Maintenance Instruction Diagram



( 1415 )
Tool magazine / Automatic tool
change system
( 12 )
Spindle unit
( 17 )
Operation box
( 16 )
Emergency stop button
( 1213 )
Coolant