EasyManua.ls Logo

Siemens 3VF7 - Page 5

Siemens 3VF7
12 pages
Print Icon
To Next Page IconTo Next Page
To Next Page IconTo Next Page
To Previous Page IconTo Previous Page
To Previous Page IconTo Previous Page
Loading...
5
a
z
n
24 6N
A1
14
15
F1
+
F3 F2
C1 D1
C2 D2
U
<
T5 T6 T7 T8
Q1
K
L
K
L
K
L
K
L
67 77
68 78
S4
11 21
12 22
S1
14 24
15 25
16 26
S1
18 28
T1
T2
T3
T4
NS1-5061
13 5N
Español
Italiano
Svenska
Advertencia
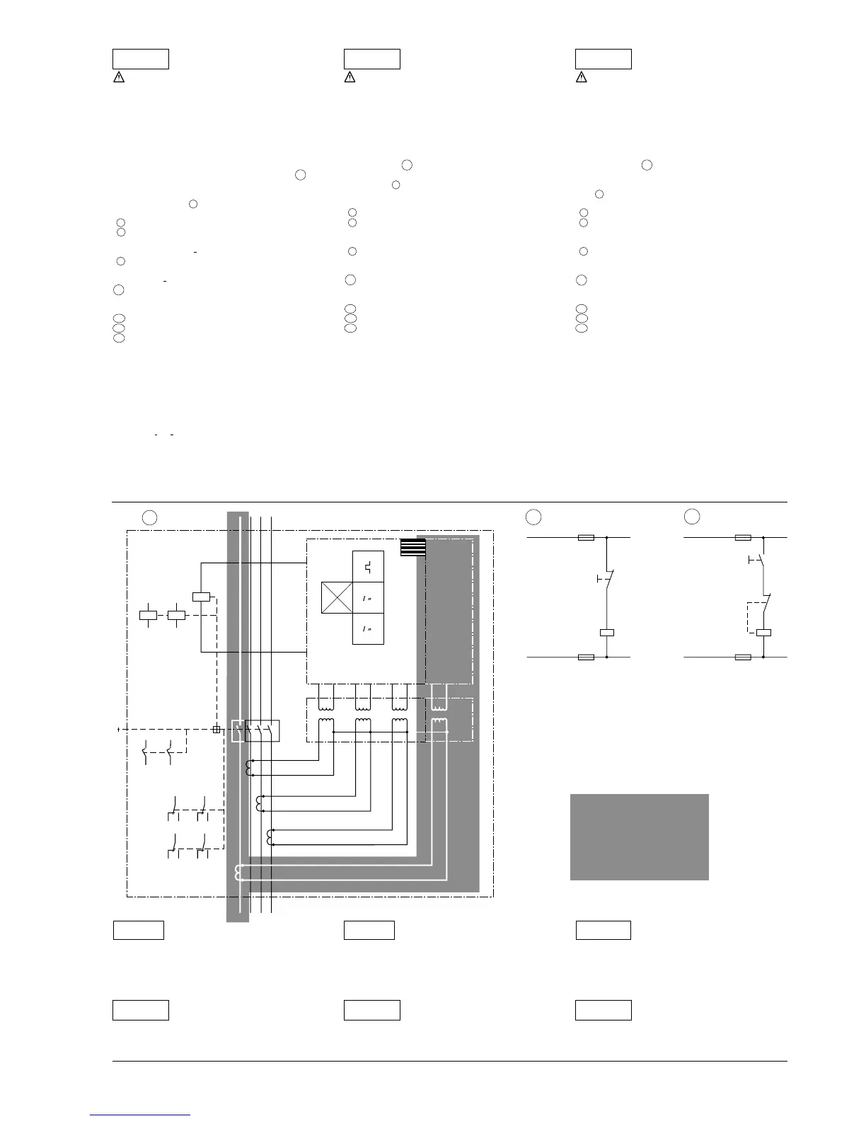
Antes de conectar el interruptor de potencia o sus acceso-
rios, es indispensable comprobar, que todos los conducto-
res, piezas de conexión y bornes se encuentren libres de
tensión.
Conexión de los conductores de los circultos de mando
En la placa de características derecha se indican los acce-
sorios montados en el interruptor (interruptores auxiliares,
interruptores de alarma, disparadores auxiliares). Designa-
ción de bornes, véase el esquema de conexíones 11 .
Las posiciones de los interruptores auxiliares y de alarma se
muestran en la tabla 6 .
7 Posición de la palanquita basculante
8 Posición de los interruptores auxiliares 1 a 4. Las
denominaciones de bornes entre paréntesis se
refieren al 2
o
bloque de contactés auxiliares
9 Posición del interruptor de alarma. Las denomi-
naciones de bornes entre paréntesis se refieren
al 2
o
bloque de contactés
10 Posición del interruptor auxiliar de actuación ade-
lantada (montado en el accionamiento frontal
giratorio).
11 Diagrama de conexión del interruptor de potencia
12
Diagrama de conexión del disparador de minima tensión
13 Diagrama de conexión del disparador por co-
rriente de trabajo
Q1 Contactos principales
A1 Disparador de sobrecorrientes electrônico
F1 Electroimàn (bobina) de disparo de A1
F2 Disparador de minima tensión
F3 Disparador por corriente de trabajo
S Contacto normalmente cerrado integrado en el
disparador por corriente de trabajo
SOA Desconectar, a distancia
S1 1
o
y 2
o
bloque de interruptores auxiliares
S3 Interruptor de alarma
S4 Interruptor auxiliar de actuación adelantada (mon-
tado en el accionamiento frontal giratorio)
T1...T4 Transformadores de corriente
T5T8 Transformadores intermedios
F4/F5 Fusibles del circuito de mando
Pericolo
Prima di effettuare il collegamento dell'interruttore e dei suoi
accessori, si faccia sì che tutti i conduttori, componenti
d'allacciamento a morsetti siano privi di tensione.
Allacciamento dei conduttori ausiliari
Gli accessori incorporati nell'interruttore (sganciatori ausi-
liari, contatti ausiliari e di allarme) sono riportati sulla targhetta
a destra. Per le designazioni dei terminali si veda Io schema
d'allacciamento 11 .
Nella tabella 6 sono riportate le posizioni dei contatti ausi-
liari e di allarme.
7 Posizione della leva di comando
8 Posizione dei contatti ausiliari 1 - 4. I numeri fra
parentesi si riferiscono al 2
o
blocchetto di contatti.
9 Posizione del contatto di allarme. I numeri fra
parentesi si riferiscono al 2
o
blocchetto di contatti.
10 Posizione dei contatti ausiliari anticipati incorpo-
rati nel comando rotativo
11 Schema dell'interruttore automatico
12 Schema dello sganciatore di minima tensione
13 Schema dello sganciatore a lancio di corrente
Q1 Contatti principali
A1 Sganciatore elettronico di sovracorrente
F1 Solenoide di sgancio per A1
F2 Sganciatore di minima tensione
F3 Sganciatore a lancio di corrente
S Contatto NC incorporato nello sganciatore a lan-
cio di corrente
SOA Comando di apertura a distanza
S1 Contatti ausiliari 1 e 2
S3 Contatto di allarme
S4 Contatto ausiliario anticipato incorporato nel co-
mando rotativo
T1T4 Riduttori di corrente
T5T8 Riduttori di corrente intermedi
F4/F5 Fusibili nel circuito di comando
Varning
Före anslutning av effektbrytaren och dess tillbehör, måste
det säkerställas att samtliga anslutningsdetaljer, ledare,
kabel etc. är i spänningslöst tillständ.
Anslutning av manöverledningar
Är effektbrytaren från fabrik utrustad med inbyggda tillbehör
(hjälp- resp. alarmkontakter och/eller hjälputlösare) finns
dessa angivna på brytarens högra etikett. Anslutningsbeteck-
ningar se schema 11 .
Hjälp- resp. alarmkontakternas lägen och beteckningar se
tabell 6 .
7 Vippans lägen
8 Hjälpkontakternas (1 -4) lägen. Siffrorna inom
parentes gäller det andra hjälpkontaktblocket
9 Alarmkontaktens lägen. Siffrorna inom parentes
gäller den andra alarmkontakten
10 Den förilande hjälpkontaktens lägen. Hjälpkon-
takterna är inbyggda i vredet.
11 Kopplingsscherna, effektbrytare
12 Kopplingsschema, underspänningsutlösare
13 Kopplingsschema, arbetsströmutlösare
Q1 Huvudkontakt
A1 Elektronisk utlösare
F1 Utlösningsmagnet till A1
F2 Underspänningsutlösare
F3 Arbetsströmutlösare
S 1 arbetsströmutlösaren inbyggd kontakt, lö
SOA Fjärrfrånslag
S1 1:a + 2:a hjälpkontakten
S3 Alarmkontakt
S4 Förilande hjälpkontakt (inbyggd i vredet)
T1T4 Strömtrafo
T5T8 Mellantrafo
F4/F5 Manöversäkringar
Español
Italiano
Svenska
Der Unterspannungsauslöser entspricht den Anforderun-
gen der IEC-Publikation 947-2. Danach sollten die Unter-
spannungsauslöser, die zum Abschalten in Sicherheits-
stromkreisen eingesetzt werden, nicht gleichzeitig zum
betriebsmäßigen Schalten verwendet werden.
Deutsch
English Français
Undervoltage release conforms to IEC 947-2. Should the
undervoltage release form part of a safety circuit it should
not be used to operate the breaker under normal service
conditions.
Le déclencheur à manque de tension répond aux exigences
de la norme IEC 947-2. De ce fait, les déclencheurs à
manque de tension servant à la coupure des circuits de
sécurité ne doivent pas être utilisés également pour la
coupure des circuits d'exploitation.
AI usar el disparador de mínima tensión (según IEC 947-2)
en una red de emergencia, no es posible usarlo al mismo
tiempo en operación normal.
Se il sganciatore di minima lensione (secondo IEC 947-2) fa
parte di un interrutore di sicurezza, non dovrebe anche
venire usato per controllare l'interruttore sotto condizioni
normali.
Underspänningsutlösaren uppfyller norm enl. IEC 947-2.
Enligt denna norm får underspänningsutlösare som an-
vänds för frånslag i säkerhetskretsar, ei samtidigt användas
för driftsmässiga kopplingar.
11
12
13
L1 (L+)
F4
S0A
F2
D1
D2
U
<
F5
N(L2,L)
NS1-2985
L1 (L+)
F4
S
F3
C1
C2
F5
N(L2,L)
S0A
- 4-polige Ausführung
- 4-pole version
- version tétrapolaire
- esecuzione a 4 poli
- ejecución tetrapolar
- 4-poligt utförande