EasyManua.ls Logo

Siemens SINAMICS G120 - Page 159

Siemens SINAMICS G120
176 pages
To Next Page IconTo Next Page
To Next Page IconTo Next Page
To Previous Page IconTo Previous Page
To Previous Page IconTo Previous Page
Loading...
Accessories
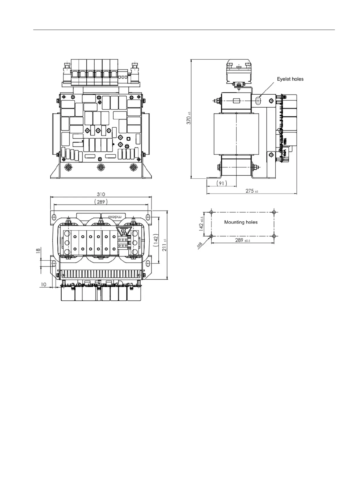
8.12 dv/dt filter plus VPL
Power Module PM240-2
Hardware Installation Manual, 01/2020, A5E33294624B AL
157
Figure 8-10 Dimensions for JTA:TEF1203-0JB

Table of Contents

Other manuals for Siemens SINAMICS G120

Related product manuals