EasyManua.ls Logo

Silverado 1500 - Page 20

Silverado 1500
1110 pages
Print Icon
To Next Page IconTo Next Page
To Next Page IconTo Next Page
To Previous Page IconTo Previous Page
To Previous Page IconTo Previous Page
Loading...
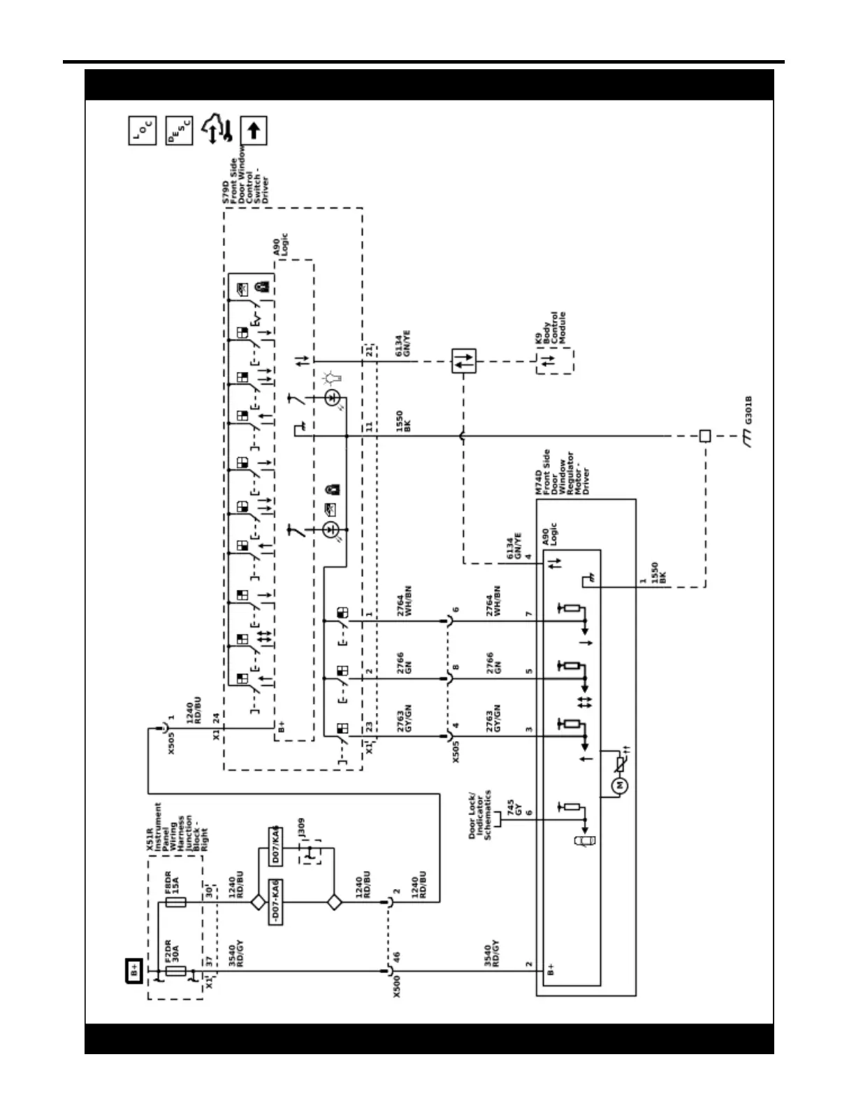
2-4 Fixed and Moveable Windows
Moveable Window Schematics (Driver Window (AXG))
5967328
2022 - Silverado 1500 (New) Electrical Body Builder Manual