EasyManua.ls Logo

Simu GM800 - Page 26

Simu GM800
Print Icon
To Next Page IconTo Next Page
To Next Page IconTo Next Page
To Previous Page IconTo Previous Page
To Previous Page IconTo Previous Page
Loading...
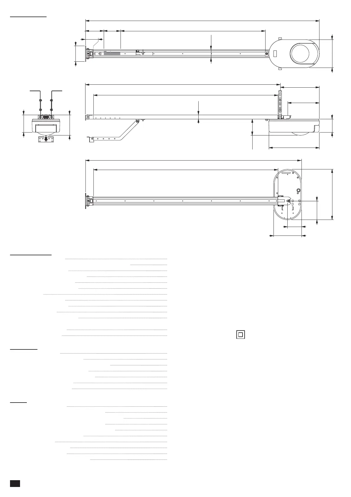
2
171 min
140
Nützliches Wettrennen : 2555 / 3155
Gesamte Länge : 3295 / 3895
224,4
65,5
125
63,6
Befestigung : 2982 / 3582
Führungsschiene : 2900 / 3500
313,6
404,2
106
130,9
33,5
Gesamte Länge : 3153 / 3753
Führungsschiene : 2900 / 3500
139,5
164,4
404,2
150,1
224,4
112,2
254,1
Abmessungen
Technische Daten
- Spannungsversorgung 230V / 50Hz
- Maximale Leistungsaufnahme (stand-by - im Betrieb) 4W / 120W
- Funkfrequenz (Simu Hz) 433,42MHz
- Anzahl der speicherbaren Kanäle 32
- Zugkraft (Spitzenbelastung) 800N
- Zugkraft (Anfangsbelastung*) 650N
- Verwendung max. 20 Zyklen pro Tag (getestet für 36.500 Zyklen)
- Höchstgeschwindigkeit 0,14 m/s max.
- Programmierschnittstelle 4 Tasten - 4 Kontrollanzeigen
- Betriebstemperatur -20°C / +60°C - Trockener Innenbereich - IP 20
- Endanschläge bzw. -Schalter Mechanischer Endanschlag für Tor-Auf / Bewegung Elektronischer Endschalter
für Tor-Zu / Bewegung: Tor-Zu-Stellung eingelernt
- Integrierte Beleuchtung Glühlamp 24V / 21W Typ E13
- Elektrische Isolierung Klasse II (doppelte Isolierung)
Anschlüsse
- Sicherheitsanschluss Typ potenzialfreier Kontakt: NC. Kompatibilität mit Lichtschranken TX/RX
- Sicherheitsanschluss Schlupftür Typ potenzialfreier Kontakt: NC
- Anschluss der drahtgebundenen Steuerung Typ Potenzialfreier Kontakt: NO
- Anschluss orangene Warnleuchte 24V / 15W Blinkfunktion integriert
- Anschluss Stromversorgung Zubehör 24V / 500 mA max.
- Anschluss externe Antenne Ja
- Anschluss Notstrom-Akku Ja
Betrieb
- Zwangsbetriebs-Modus Durch längeres Drücken der Taste der Antriebssteuerung
- Unabhängige Steuerung der Beleuchtung Ja für integrierte Beleuchtung
- Zeiteinstellung der Beleuchtung (nach Bewegung) Fest, 60 Sek
- Vorwarnung durch orangene Warnleuchte 2 Sek. automatisch, wenn Warnleuchte angeschlossen
- Funktion Sicherheitsanschluss Beim Schließen Vollkommene Wiederöffnung
- Integrierte Hinderniserkennung Sensibilität einstellbar: 4 Stufen
- Schrittweiser Start Ja
- Öffnungsgeschwindigkeit Fest, 0,14 m/s max.
- Schließgeschwindigkeit Fest, 0,12 m/s max.
- Geschwindigkeit am Schließpunkt Programmierbar: kein Abbremsen, kurzer Abbremsbereich (30 cm), langer
Abbremsbereich (50 cm).
*Maximaler Kraftaufwand für die Startbewegung des Tores, dann Bewegung des Tores über mindestens 5 cm (gemäß RAL-GZ).