EasyManua.ls Logo

Snapper 5900664 - Page 63

Snapper 5900664
70 pages
Print Icon
To Next Page IconTo Next Page
To Next Page IconTo Next Page
To Previous Page IconTo Previous Page
To Previous Page IconTo Previous Page
Loading...
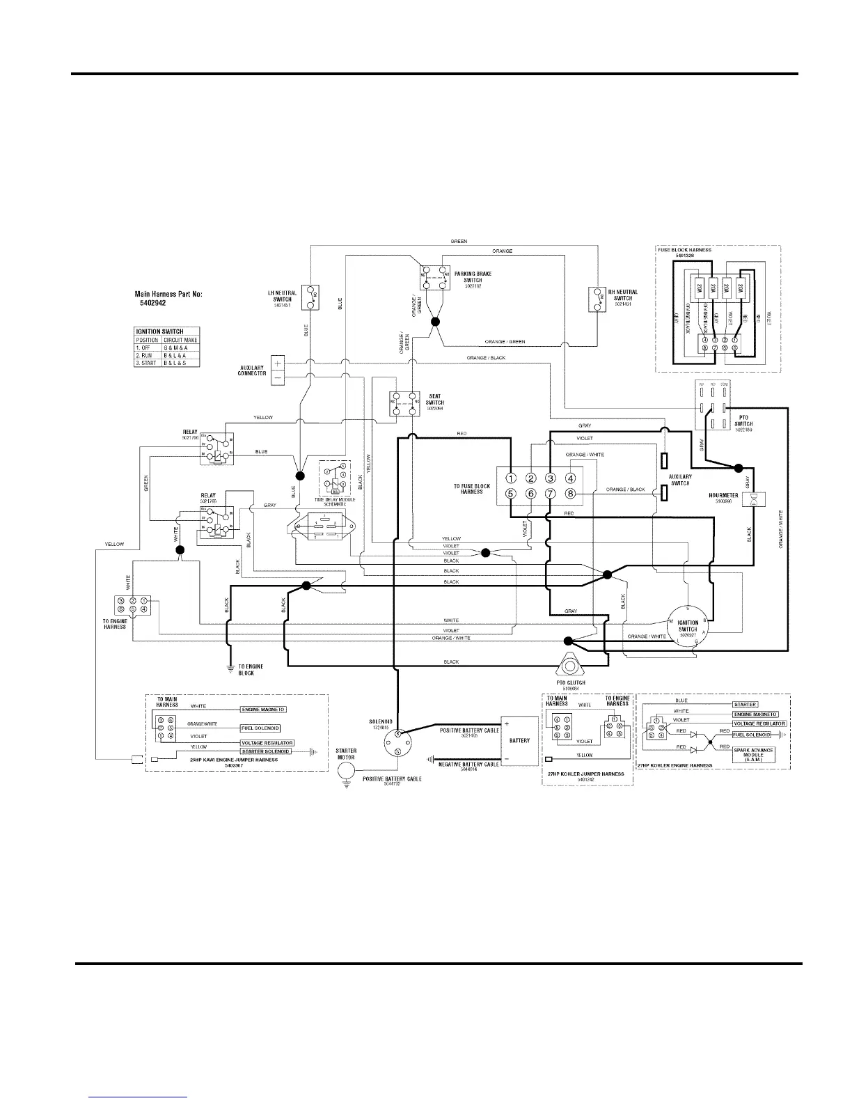
Electrical Schematic - PTO Clutch Circuit - Kawasaki & Kohler Models
5300864P
The above parts group applies to the following Mfg. Nos.:
#Name
63
© Copyright Briggs and Stratton. All Rights Reserved.
5900664
5900692
5900695
TP 400-7329-J-M2-SP

Related product manuals