EasyManua.ls Logo

Soosan SB70 - Page 36

Default Icon
121 pages
Print Icon
To Next Page IconTo Next Page
To Next Page IconTo Next Page
To Previous Page IconTo Previous Page
To Previous Page IconTo Previous Page
Loading...
Soosan
H
y
draulic Breaker
Soosan Heav
y
Industries Co.
,
Ltd
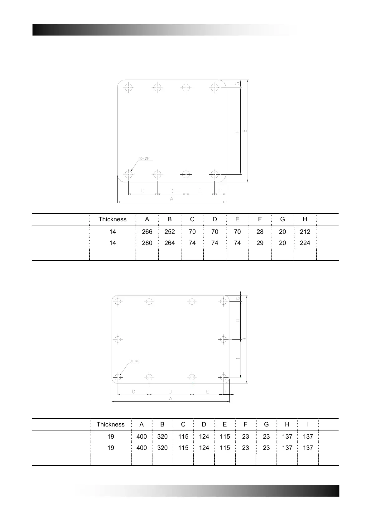
3.3 COVER PLATE(TS-P Type)
SB10II 30II TS -P
Model Thickness A B C D E F G H K
SB10II TS-P 14 266 252 70 70 70 28 20 212 17
SB20II TS-P 14 280 264 74 74 74 29 20 224 19
SB30II TS-P 14 280 264 74 74 74 29 20 224 19
SB35II 43II TS -P
Model Thickness A B C D E F G H I K
SB35II TS-P 19 400 320 115 124 115 23 23 137 137 21
SB40II TS-P 19 400 320 115 124 115 23 23 137 137 21
SB43II TS-P 19 450 336 120 164 120 23 23 145 145 21

Related product manuals