EasyManua.ls Logo

Specified Controls SC-Z20 - Page 7

Specified Controls SC-Z20
19 pages
Print Icon
To Next Page IconTo Next Page
To Next Page IconTo Next Page
To Previous Page IconTo Previous Page
To Previous Page IconTo Previous Page
Loading...
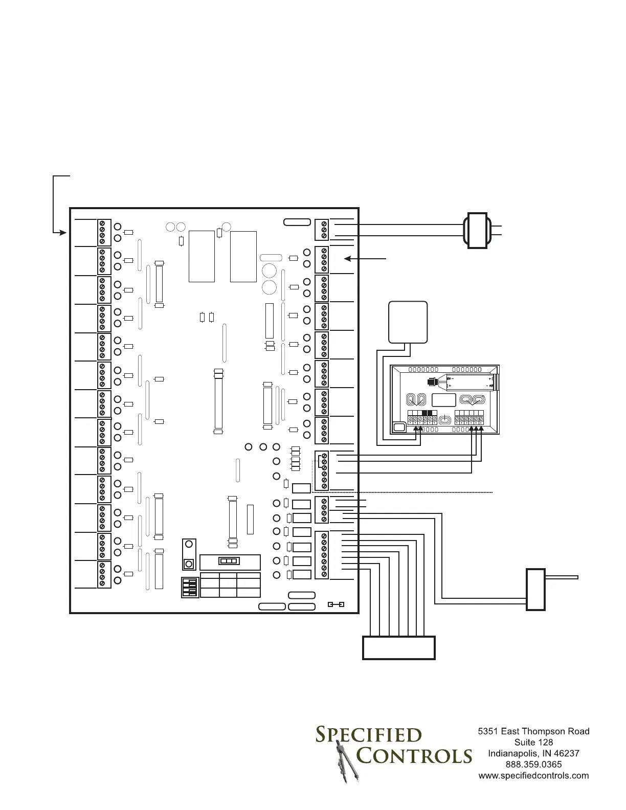
SC-Z20
MODULATING ZONE CONTROL SYSTEM
PANEL LAYOUT
ZONE 13 ZONE 12 ZONE 11 ZONE 10 ZONE 9 ZONE 8 ZONE 7 ZONE 6 ZONE 5 ZONE 4 ZONE 3 ZONE 2
ZONE 1
R
C
Y
W
R
C
Y
W
R
C
Y
W
R
C
Y
W
R
C
Y
W
R
C
Y
W
R
C
Y
W
R
C
Y
W
R
C
Y
W
R
C
Y
W
R
C
Y
W
R
C
Y
W
R
C
Y
W
R
C
Y
W
R
C
Y
W
R
C
Y
W
R
C
Y
W
R
C
Y
W
R
C
Y
W
R
C
Y
W
ZONE 20 ZONE 19 ZONE 18 ZONE 17 ZONE 16 ZONE 15
R
C
NOT USED
R
C
T
T
NS
NS
E
E
DAS
DAS
O/B
G
Y1
Y2
W1
W2
RH
RC
1 AMP
1 AMP
1 AMP
SPARE SYSTEM RH
SYSTEM RC
RH-RC
JUMPER
O/B
G
Y1
Y2
W1
W2
COOL
HEAT
COOL
HEAT
COOL
HEAT
COOL
HEAT
COOL
HEAT
COOL
HEAT
COOL
HEAT
COOL
HEAT
COOL
HEAT
COOL
HEAT
COOL
HEAT
COOL
HEAT
COOL
HEAT
COOL
HEAT
COOL
HEAT
COOL
HEAT
COOL
HEAT
COOL
HEAT
COOL
HEAT
COOL
HEAT
4 AMP
PC BOARD
HP HC SYSTEM
B O REV VALVE
3 ZONES OFF MINIMUM
2 ZONES OFF CALLS
ON OFF
ECONO
SPEED
UP
MODE
TIME DELAYS
DIVIDED BY 15
STATUS HEAT COOL
DAS ACTIVE
OCCUPIED
HEAT
AUTO
COOL
SC-Z20 ‘E’ AND ‘E’ CONTACTS
CLOSE IN OCCUPIED MODE
DISCHARGE
AIR SENSOR
HEAT SETPOINT 140° F
COOL SETPOINT 54° F
24V
120V
R W2 W1 Y2 Y1 G 0/B
HVAC UNIT
WIRE TO ZONE DAMPER ACTUATOR
BOARD TERMINALS (R, C, Y, W)
TYPICAL OF ALL
ZONES
24 VOLT
75VA
TRANSFORMER
WIRE TO ZONE DAMPER ACTUATOR
BOARD TERMINALS (R, C, Y, W)
TYPICAL OF ALL
ZONES
Optional
SC-Z20-S1
Remote
Sensor
Terminals
PLACE JUMPER ACROSS
‘R’ AND ‘T’ TERMINALS
SC-Z20-NS
NIGHT STAT
S2
SC S1
O/B
AUX AUX
Y1 Y2 W1
G
R
C
Jackson Systems, LLC
www.jacksonsystems.com
WIRE
ACCESS
HOLE
BATTERY
COMPARTMENT
MOUNTING HOLES
MOUNTING HOLES
W2
MOUNTING
HOLE