EasyManua.ls Logo

Stulz Mini-Space DX CCU71A - Page 53

Stulz Mini-Space DX CCU71A
74 pages
Print Icon
To Next Page IconTo Next Page
To Next Page IconTo Next Page
To Previous Page IconTo Previous Page
To Previous Page IconTo Previous Page
Loading...
5
/01.2017/air_MSDX
800
125
20
113,5
29x Ø 9,5
6x 125 (=750)
88,5
977
88,5
125 125
48,5
113,5
30
20
20
5x 125 (=625)
20
13
738
125
675
56,5
31,5
38,5
400
400
523
47
564
56
1
EN
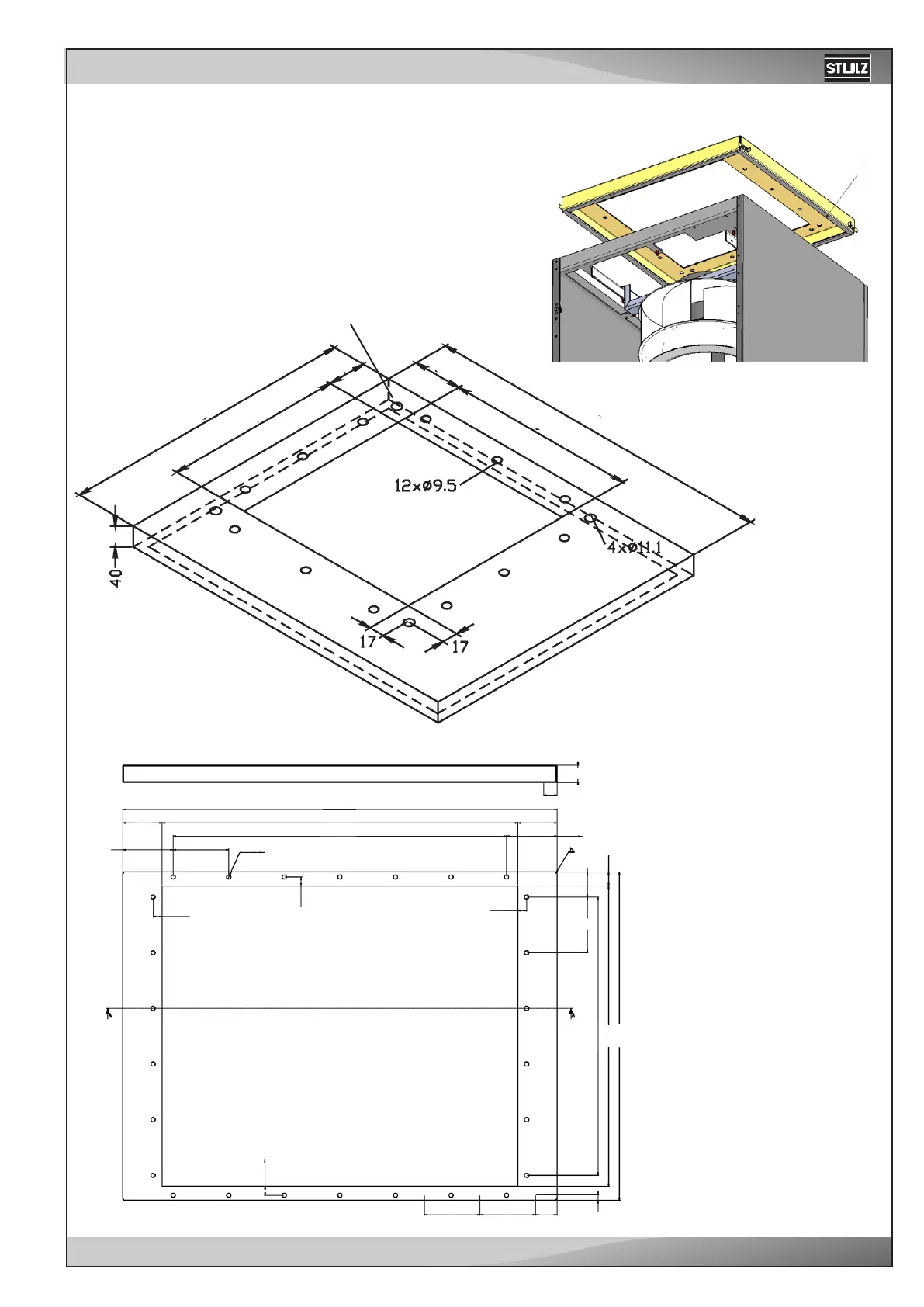
Base for duct connection and air damper - Upflow
The base is set on the A/C unit without being screwed. The duct is fixed
on the base with 4 M8 screws.
4xM8-nut set up from above.
Size 2:
Size 1:
1: The surface between the base and the fan
support must be sealed with an appropriate
adhesive tape.

Related product manuals