EasyManua.ls Logo

Sub-Zero ICBBI-36F - Page 5

Sub-Zero ICBBI-36F
78 pages
Print Icon
To Next Page IconTo Next Page
To Next Page IconTo Next Page
To Previous Page IconTo Previous Page
To Previous Page IconTo Previous Page
Loading...
5
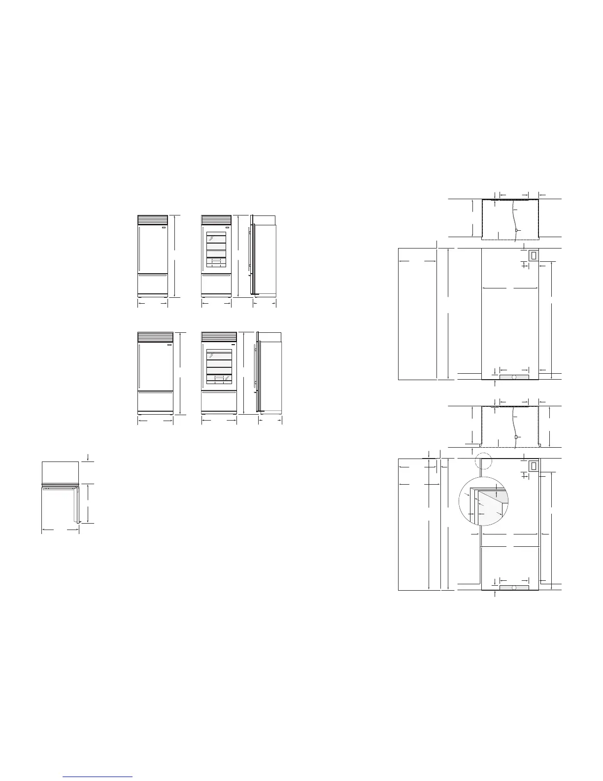
BUILT-IN INSTALLATION SPECIFICATIONS
DOOR CLEARANCE
Over-and-Under Models
A
Model ICBBI-30U 794 mm
806 mm Flush Inset
Model ICBBI-30UG 794 mm
806 mm Flush Inset
Model ICBBI-36U 946 mm
959 mm Flush Inset
Model ICBBI-36UG 946 mm
959 mm Flush Inset
Door clearance is based on stainless
steel door and handle dimensions.
OVERALL DIMENSIONS
Over-and-Under Models
Model ICBBI-30U
WH D
762 mm 2134 mm 610 mm
Model ICBBI-30UG
with Glass Door
WH D
762 mm 2134 mm 610 mm
Model ICBBI-36U
WH D
914 mm
2134 mm 610 mm
Model ICBBI-36UG
with Glass Door
WH D
914 mm 2134 mm 610 mm
Unit dimensions may vary by ± 3 mm.
606 mm
BEHIND
FRAME
WIDTH
OF UNIT
A
Model ICBBI-30U
Model ICBBI-36U
762 mm
2134
mm
762 mm
2134
mm
610 mm
914 mm
2134
mm
914 mm
2134
mm
610 mm
Model ICBBI-30UG
Model ICBBI-36UG
Stainless steel design shown.
INSTALLATION SPECIFICATIONS
Over-and-Under Models—
Overlay (non-flush inset) and Stainless Steel
A
Model ICBBI-30U 749 mm
Model ICBBI-30UG 749 mm
Model ICBBI-36U 902 mm
Model ICBBI-36UG 902 mm
Dimensions are for finished rough openings.
INSTALLATION SPECIFICATIONS
Over-and-Under Models—
Flush Inset Application
AB
Model ICBBI-30U 749 mm 813 mm
Model ICBBI-30UG 749 mm 813 mm
Model ICBBI-36U 902 mm 965 mm
Model ICBBI-36UG 902 mm 965 mm
Dimensions are for finished rough openings.
1918 mm
178
mm
152
mm
E
LOCATE
ELECTRICAL
WITHIN
SHADED AREA
457 mm
W
LOCATE WATER SUPPLY
WITHIN SHADED AREA
152
mm
FRONT VIEWSIDE VIEW
2127 mm
OPENING
HEIGHT
A
OPENING WIDTH
76 mm
610 mm
OPENING
DEPTH
13 mm
457 mm
*
152
mm
610 mm
OPENING
DEPTH
SHUT-OFF
VALV E
OUTLINE OF
OVERLAY
OR STAINLESS
STEEL MODEL
TOP VIEW
*ANTI-TIP
BRACKET MUST NOT
INTERFERE
WITH WATER LINE.
REFER TO INSTALLATION
INSTRUCTIONS FOR COMPLETE
DETAILS.
EXTEND WATER LINE APPROX
914 mm FROM BACK WALL.
WATER LINE
1918 mm
178
mm
152
mm
E
LOCATE
ELECTRICAL
WITHIN
SHADED AREA
13 mm
457 mm
*
152
mm
610 mm
OPENING
DEPTH
665 mm
FLUSH INSET
DEPTH
SHUT-OFF
VALV E
OUTLINE
OF FLUSH INSET
APPLICATION WITH
19 mm PANEL
457 mm
W
LOCATE WATER SUPPLY
WITHIN SHADED AREA
152
mm
FRONT VIEWSIDE VIEW
TOP VIEW
2127 mm
OPENING
HEIGHT
2134
mm
FLUSH
INSET
HEIGHT
6 mm
56 mm**
76 mm
A
OPENING WIDTH
B
FLUSH INSET WIDTH
32
mm
32
mm
56
mm**
610 mm
OPENING
DEPTH
665 mm
FLUSH INSET
DEPTH
*ANTI-TIP
BRACKET MUST NOT
INTERFERE
WITH WATER LINE.
REFER TO INSTALLATION
INSTRUCTIONS FOR COMPLETE
DETAILS.
**ASSUMES 19 mm PANEL
THICKNESS.
EXTEND WATER LINE APPROX
914 mm FROM BACK WALL.
WATER LINE
6
mm
32
mm
FLUSH INSET
DETAIL
56
mm
610 mm
OPENING
DEPTH

Other manuals for Sub-Zero ICBBI-36F

Related product manuals