EasyManua.ls Logo

Subaru IMPREZA 2001 - Page 34

Subaru IMPREZA 2001
189 pages
Print Icon
To Next Page IconTo Next Page
To Next Page IconTo Next Page
To Previous Page IconTo Previous Page
To Previous Page IconTo Previous Page
Loading...
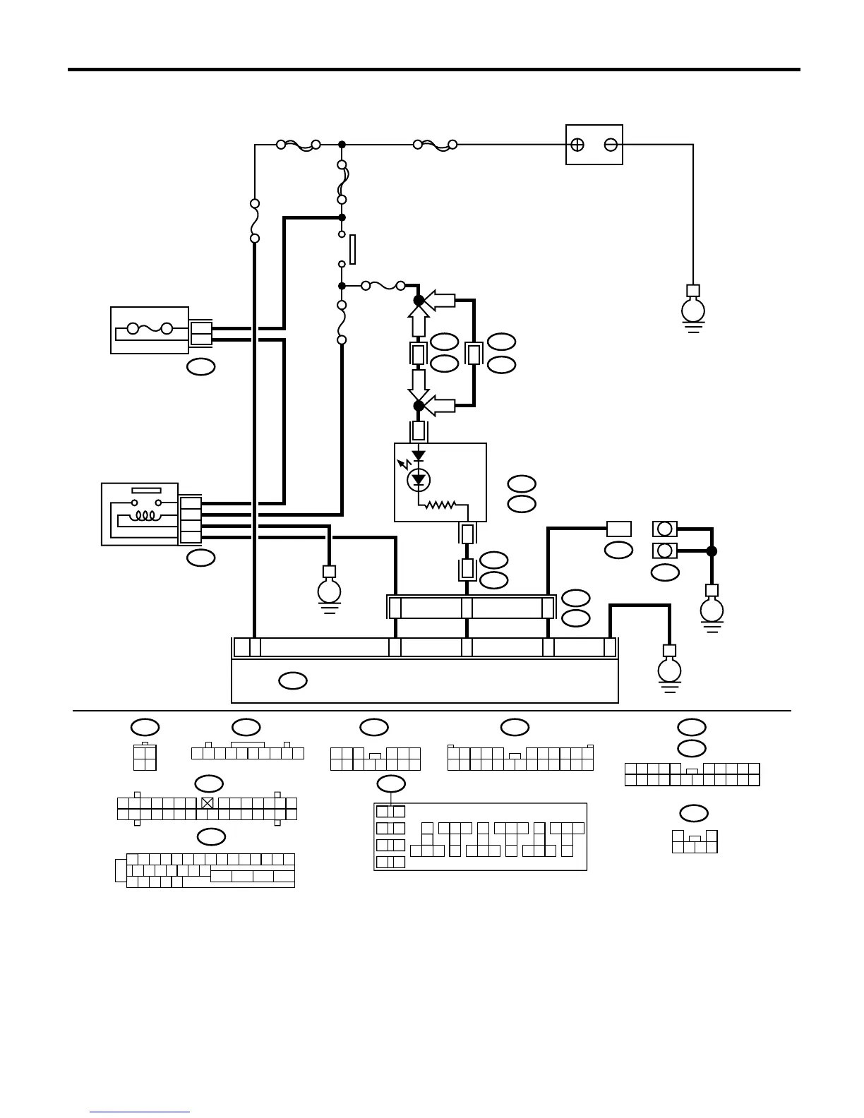
ABS-33
ABS (DIAGNOSTICS)
DIAGNOSTICS CHART WITH DIAGNOSIS CONNECTOR
WIRING DIAGRAM: RHD MODEL
BR0036
E
BATTERY
IGNITION
SWITCH
ABS RELAY
RELAY HOLDER
10A
3
4
2
1
3
4
SBF-3 SBF-1
SBF-4
B264
B225
B36
No.13
No.18
No.8
i1
i10A :
B :
i11
i2
B37
B200
F74
ABS
INDICATOR
LIGHT
COMBINATION
METER
E
E
E
A7
1
6
B3
19
20
19
4
23
22
B38
B82
i3
MT
MT
AT AT
22
4
F49
B82
B264 i10A :
i11B :
i2 i3
F74
i1
B225
34
12
1
23456789
10
3412 89
10 11
12 13 14 15 16 17 18 19 20 21 22 23 24
567
1 2 3 4 5 6 7 8 9
10 11 12 13 14
15 16 17 18 19 20 21 22 23 24 25 26 27 28 29 30
10
11 12 13
14 15 16
17
18
19
20
21 22 23
24 25 26
27
28
29
30
31 32 33
34 35 36
37
38
1 2
9
3 4
5 6
7 8
1 2 3 4 5 6 7 8 9
10 11 12 13 14 15
16 17 18 19 20 21 22
27 28 29 30 31
23 24 25 26
1
2
3456
1 2 3 4 5 6
7 8 9
10 11 12 13 14
12345 6789
10
11
12
19 20 21
13 14 15 16
17
18
22
24
DIAGNOSIS
TERMINAL
F49
ABS CONTROL MODULE AND HYDRAULIC CONTROL UNIT
B81

Related product manuals