EasyManua.ls Logo

Sullair 300HH - Wiring Diagram

Sullair 300HH
164 pages
To Next Page IconTo Next Page
To Next Page IconTo Next Page
To Previous Page IconTo Previous Page
To Previous Page IconTo Previous Page
Loading...
49
375 John Deere Standard and Aftercooled/Filtered Operator’s Manual and Parts List
DESCRIPTION
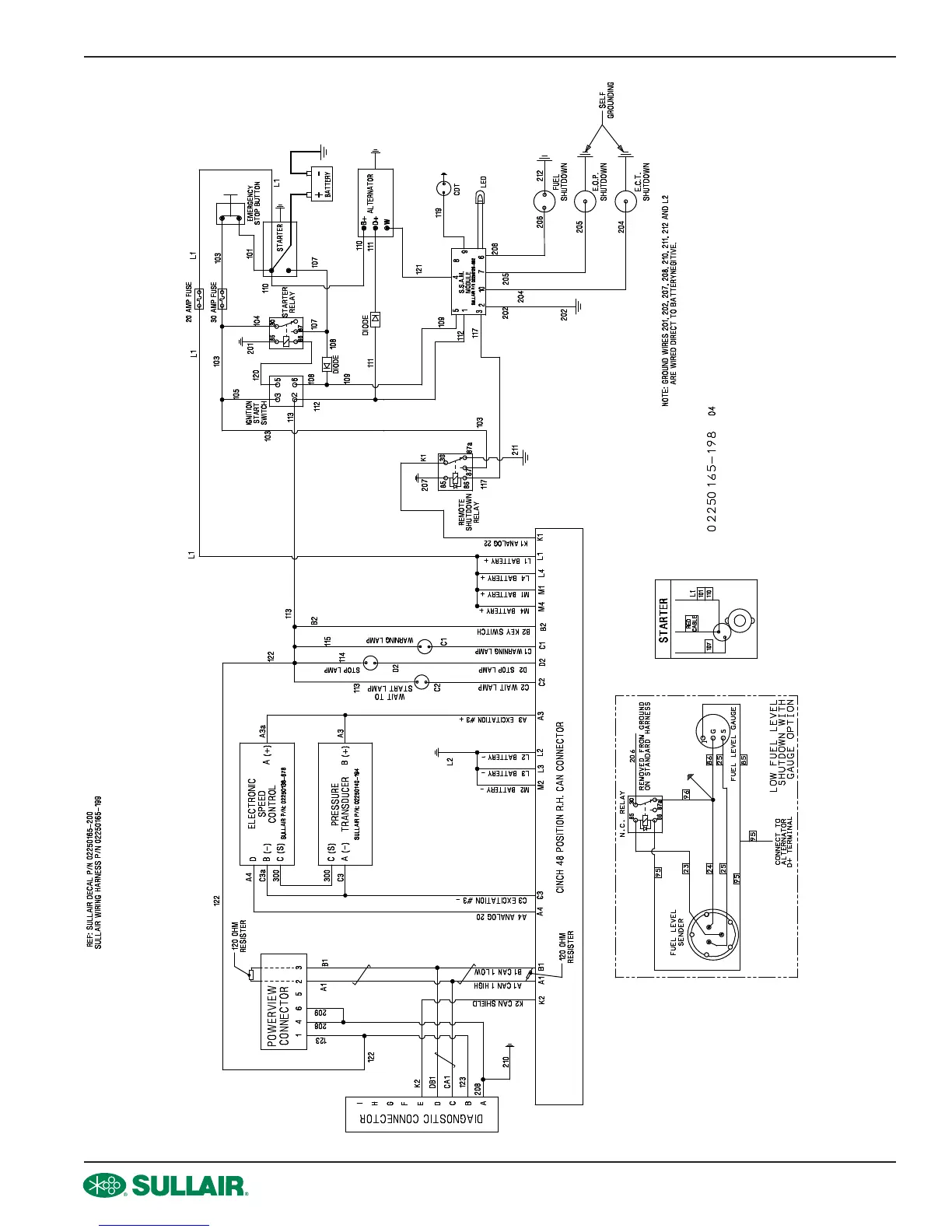
WIRING DIAGRAM2.9

Table of Contents

Other manuals for Sullair 300HH

Related product manuals