EasyManua.ls Logo

Sullair SR 75AC - Dryer Dimensions SR 175-220 AC

Sullair SR 75AC
69 pages
To Next Page IconTo Next Page
To Next Page IconTo Next Page
To Previous Page IconTo Previous Page
To Previous Page IconTo Previous Page
Loading...
User Manual US-EN SR 10-480 AC
02250246-045 R02
51
Subject to EAR. ECCN EAR99 and related export control restrictions.
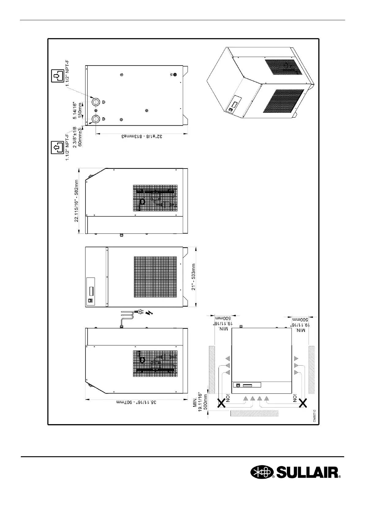
13.1.6 Dryer dimensions SR 175-220 AC

Table of Contents

Related product manuals