EasyManua.ls Logo

Svan SVTE50A4 - Page 13

Svan SVTE50A4
16 pages
Print Icon
To Next Page IconTo Next Page
To Next Page IconTo Next Page
To Previous Page IconTo Previous Page
To Previous Page IconTo Previous Page
Loading...
1
1
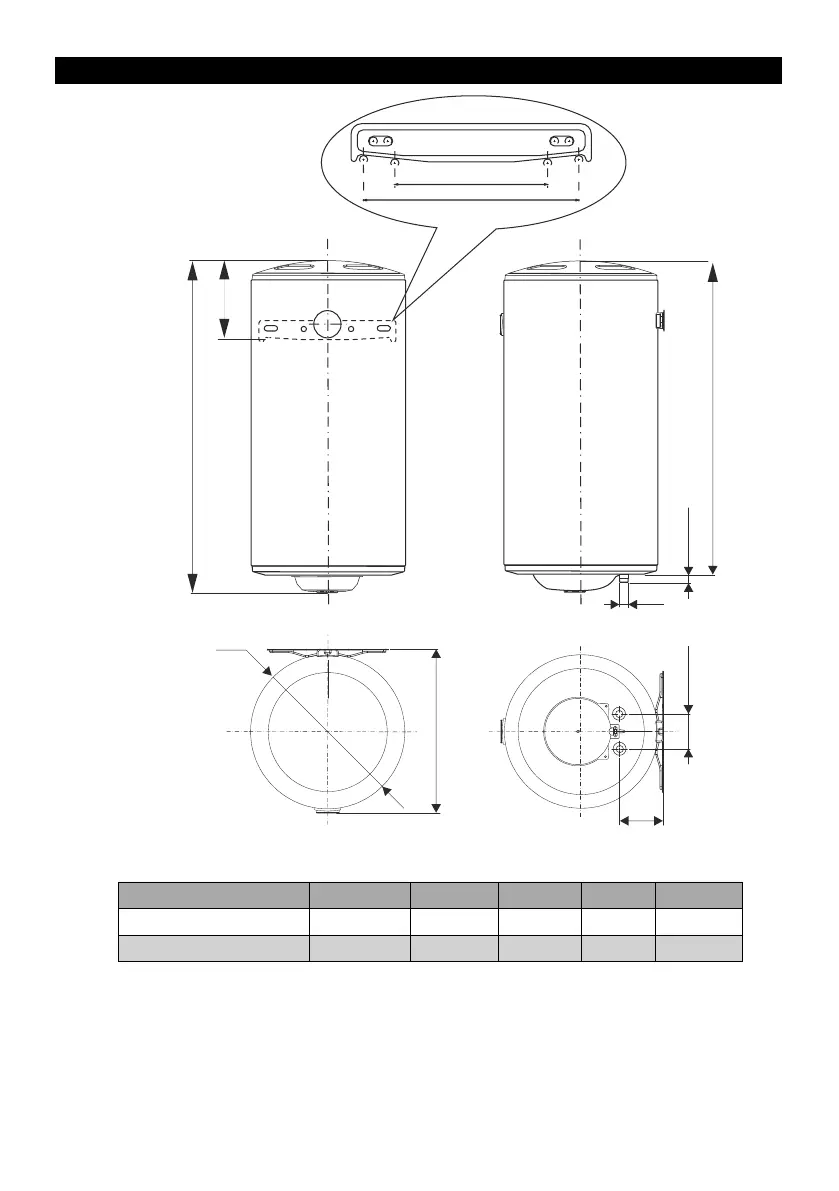
Note: The illustration is a reference image, your device may di󰀨er.
Nota: La ilustración es una imagen de referencia, su aparato podría diferir.
B
E
C
H
H1
G
D
100
125
max 310 mm
min 220 mm
max max
min min
Type D, mm H, mm H1, mm B, mm E, mm
SVTE50A4
440 589 538 465 182
SVTE80A4
440 839 788 465 182

Related product manuals