EasyManua.ls Logo

SystemAir Topvex SX/C Series - Page 9

SystemAir Topvex SX/C Series
24 pages
Print Icon
To Next Page IconTo Next Page
To Next Page IconTo Next Page
To Previous Page IconTo Previous Page
To Previous Page IconTo Previous Page
Loading...
Product information |
5
30B102
968
A
62
E
C 45
K 120
II J
L FGLHLGLF
M
87
968
D
1
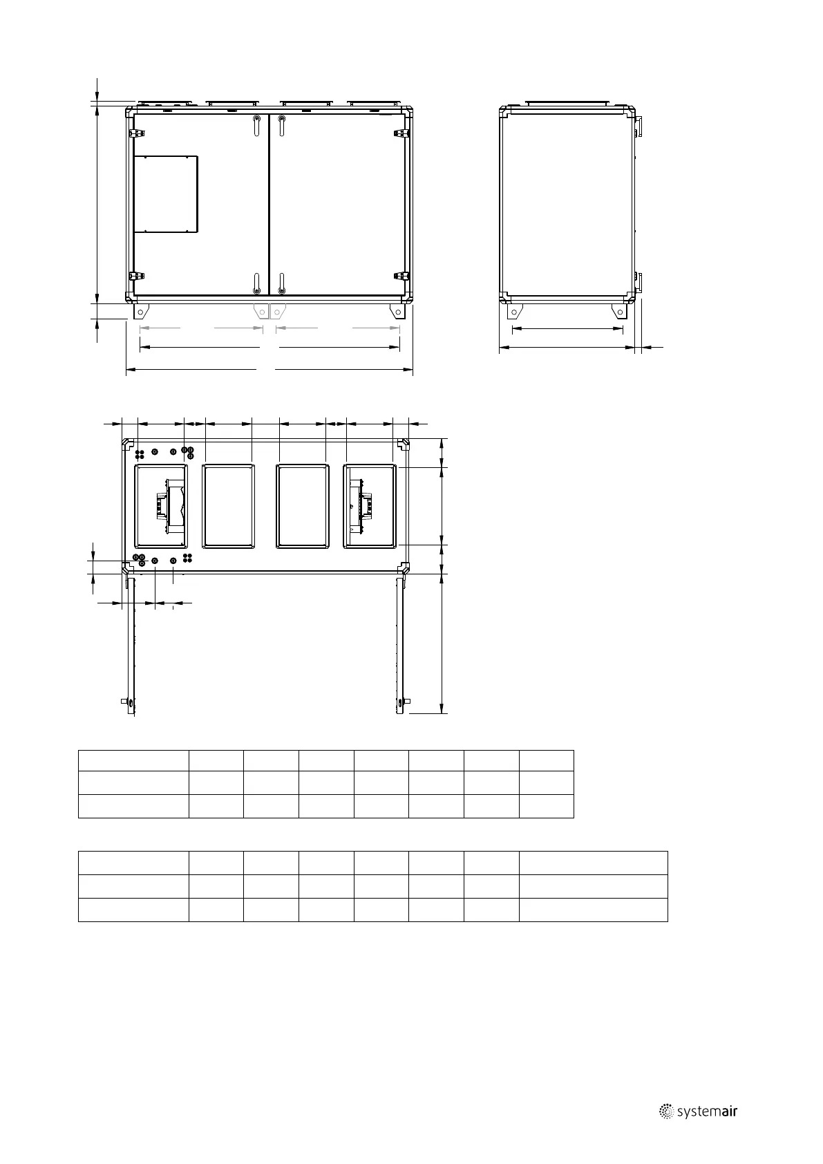
Fig. 2 Dimensions (mm) Topvex TX/C04-06 drawn as left hand unit
Model
A B C D E F G
Topvex TX/C04
1860 1279 880 1708 725 104 136
Topvex TX/C06
2150 1630 880 1998
1
725 116 196
1
TX/C has 4 extra feet
Model
H I J K L M
Weight, kg
Topvex TX/C04
180 190 500 195 300 920 296
Topvex TX/C06
324 140 600 197 300 1065 405
131677 | A004

Related product manuals