EasyManua.ls Logo

SystemAir Villavent

SystemAir Villavent
24 pages
To Next Page IconTo Next Page
To Next Page IconTo Next Page
To Previous Page IconTo Previous Page
To Previous Page IconTo Previous Page
Loading...
6
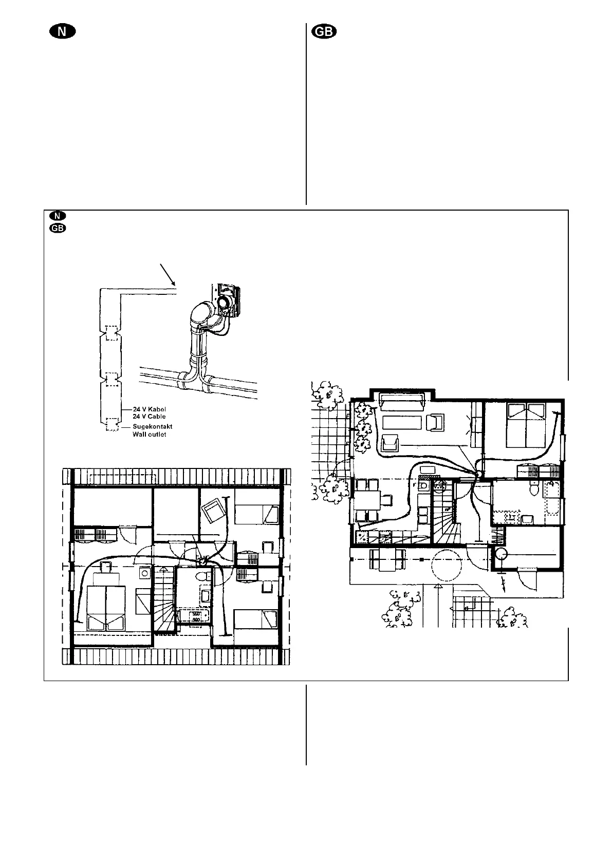
STYRELEDNING (24V)
Det er koblingspunkter i hver enkelt sugekontakt som
sørger for å starte støvsugeren straks en setter i
støvsugerslangen (som alternativ leveres slangesett
med egen av/på bryter). En må derfor huske å legge
opp styreledning langs rørtrasé i henhold til fig. 5.
Ledningen stripses eller tapes til røranlegget.
All kapping og kobling av styreledningen utføres ved
sugekontaktene. Dette for at en i fremtiden skal kunne
komme til alle koblingspunktene ved å fjerne
sugekontaktene, om det skulle oppstå feil.
Styreledningen tilsluttes støvsugerenheten.
LOW VOLTAGE WIRING (24V)
The system starts when the hose is inserted into any
inlet valve. To accomplish that, low voltage wire must
follow an uninterupted route, along the pipe run, from
inlet to inlet all the way to the power unit. See fig. 5.
(On request hose kit with ON/OFF switch can be
supplied). The wire should be secured to pipe by
using tie wraps or tape where necessary.
All cutting and splicing of the low voltage wire should be
done at the inlet valves. This facilitate easier repair
since most problems with wires occur where they have
been spliced. Connect the low voltage wire to the power
unit.
Opphenging av styreledning
Installing the low voltage wire
Tilkobling på sentralenheten
Connection to power unit
Fig. 5.
Fig. 6
Vanlig bolig på ca. 95 m² i to plan. Sentralstøvsuger
montert i bod 1. etg. med sugekontakt i stue 1. etg., og
gang i 2. etg. Som vist kan alle rom støvsuges fra disse
to sugekontaktene (og egen sugekontakt ved selve
støvsugerenheten). Legg også merke til at avkast fra
støvsuger er ført ut gjennom yttervegg.
A standard 2 storey home (approximately 95 m²). The
power unit is installed in utility room or similar with inlet
valves in living room (ground floor) and hallway (1st
floor). As shown, all rooms can now be reached (in
addition you have an inlet valve close to the power
unit). Exhaust to be lead through outer wall.

Related product manuals