EasyManua.ls Logo

TEK 2225 - Page 18

TEK 2225
215 pages
Print Icon
To Next Page IconTo Next Page
To Next Page IconTo Next Page
To Previous Page IconTo Previous Page
To Previous Page IconTo Previous Page
Loading...
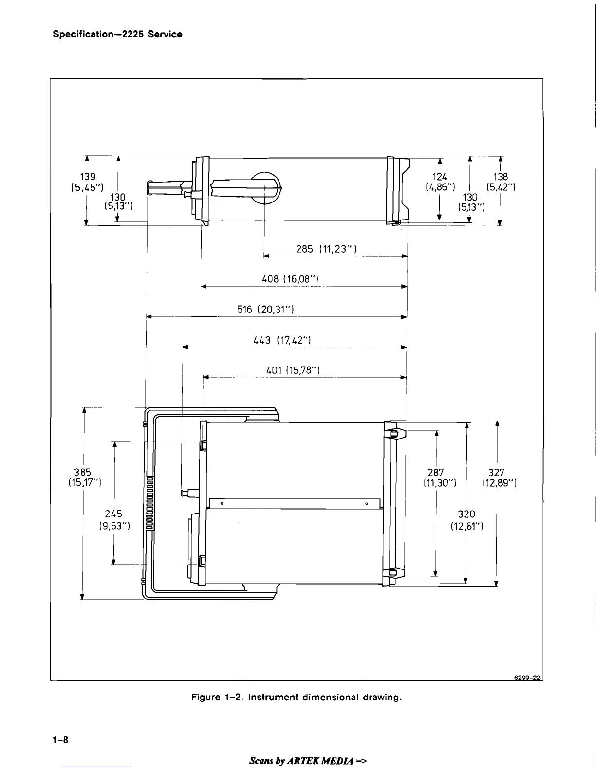
Specification-2225 Service
Figure
1-2.
Instrument dimensional drawing.