EasyManua.ls Logo

Teka TL-62 - Page 31

Teka TL-62
Print Icon
To Next Page IconTo Next Page
To Next Page IconTo Next Page
To Previous Page IconTo Previous Page
To Previous Page IconTo Previous Page
Loading...
31
P
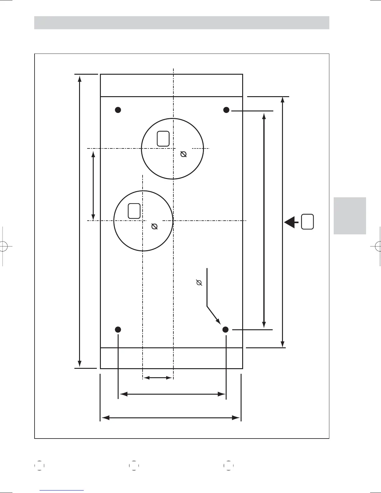
Plano de buracos para colocação no móvel
280
214
599
152
132
132
458
599
4 x 8
63
A
C
B
A
Saída para 2 motores Saída para 1 motor Frente do exaustor
B C
5-TL 62/92-CNL 1000/2000 (P) 2/9/02 17:26 Página 31

Related product manuals