EasyManua.ls Logo

Thomas 135TA - Electrical Schematics - Engine

Thomas 135TA
72 pages
Print Icon
To Next Page IconTo Next Page
To Next Page IconTo Next Page
To Previous Page IconTo Previous Page
To Previous Page IconTo Previous Page
Loading...
47
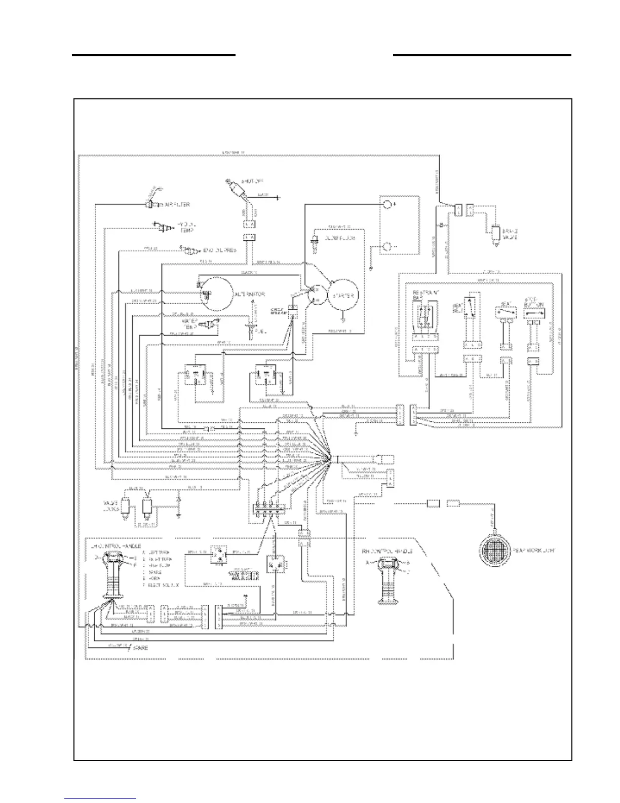
3. ELECTRICAL SCHEMATIC – ENGINE
4. MAINTENANCE
C3690