EasyManua.ls Logo

THOMSON MS 4000 - Page 9

THOMSON MS 4000
16 pages
Print Icon
To Next Page IconTo Next Page
To Next Page IconTo Next Page
To Previous Page IconTo Previous Page
To Previous Page IconTo Previous Page
Loading...
CRKD 2559/2560
First issue 08/03 27
28
P004
12345
N706
1
2
3
4
5
6
7
8
9
R008
Q003
P003
1
2
3
4
5
R009
1
2
1
2
NBC02
Q001
R011
Q004
IC04
12
1311
R010
R013R012
Q002
R006 R007
PI04
2143
PI03
2
1
3
4
P027
1
2
3
4
5
6
P026
1
2
D005
D006
IC01
1234
5678
IC02
1234
5678
IC04
4
56
IC04
1
2
3
C007
P024
1
2
D002
D001
C004
C002
C006
R005
R004
R003
N027
1
2
3
4
5
6
R002
N102
1
2
3
N006
1
2
3
C005
D003 D004L001
PI02
2
1
3
4
PI05
2
1
3
4
PI01
2
1
3
4
N101
1
2
J200
IC03
1
2
3
N705
1
2
3
4
5
6
7
IC04
14
7
IC04
9
10
8
(RED DOT)
DISC SENSOR
FROM AMP
TO MAIN
TCM
MODULE
TO DSP TO DSP
CAROUSEL MOTOR
CDM5B DRIVER BOARD
SENSOR
POSITION
CAROUSEL
CAROUSEL MOTOR BOARD
+-
M
SLIDER POSITION
TO KEY
TO KEY
+
(CIRCLE)
SENSORS
DRAWER
MOTOR
M
10K
KTA1270Y
330
KTA1270Y
330
KTC3198GR
M74HCT32
10K
100K
100K
KTC3198GR
150
100
GP2S28
RPI-574
1N4002
1N4002
FAN8082
FAN8082
M74HCT32
M74HCT32
470uF
1/2W
1/2W
100nF
100nF
10nF
100
2R2
2R2
100
1000uF
1N4002
1N4002
39uH
RPI-574
RPI-574
RPI-574
KIA7805A
M74HCT32
M74HCT32
10V
5V6
5V6
25V
25V
50V
16V
GND
5V
CD_RESET RESET
+12V
SDATA
SCLK
+V1
PLAT-SW
GND
DISC-SW
CRSMTR2
CRSMTR1
GND
+5V
CD-L
AGND
CD-R
GND
+V1CC
MDATA
SD
CLK
DRWMTR1
DRWMTR2
SLIDER2
SLIDER1
+V1
PLAT-SW
GND
DISC-SW
CRSMTR2
CRSMTR1
DRAW1
DISC-SW
PLAT-SW
PLATTER+
PLATTER-
SLIDER2
SLIDER1
CD-ENABLE
CD-RESET
MDATA
SDATA
GND
SCLK
DRAWER-
DRAWER+
DRAW2
CD-L
AGND
CD-R
GND
ANO
KAT
COL
EMIT
KAT
ANO
COL
EMIT
GND
VO1
VCTL
VIN1
VO2
SVCC
PVCC
VIN2
GND
VO1
VCTL
VIN1
VO2
SVCC
PVCC
VIN2
KAT
ANO
COL
EMIT
KAT
ANO
COL
EMIT
KAT
ANO
COL
EMIT
IN
GND
OUT
VCC
GND
P006
1
2
3
PI06
2
1
3
4
DRAWER1 BD
RPI-574
KAT
ANO
COL
EMIT
1
2
3
4
5
1
2
3
4
N2
N1
BC02
TO DSPTO DSP
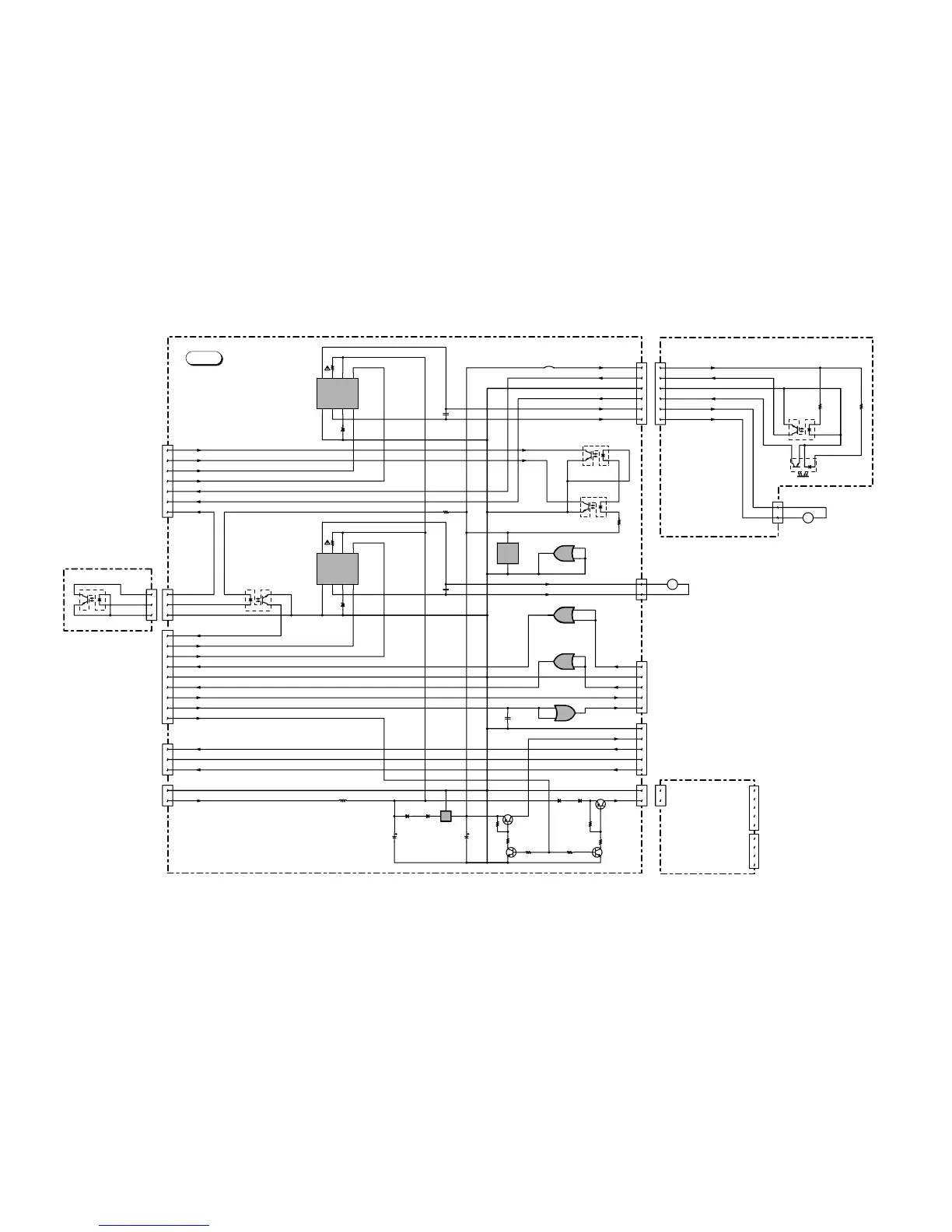
CD CONTROL MOTORS SCHEMATIC DIAGRAM - SCHEMA COMMANDES MOTEURS CD - SCHALTBILD CD WECHSLER-MOTOR - SCHEMA COMANDI MOTORI CD - ESQUEMA
MANDOS MOTORES CD - (MS6000)
SVB

Related product manuals