EasyManua.ls Logo

Tisira TCT63E - Page 9

Tisira TCT63E
36 pages
Print Icon
To Next Page IconTo Next Page
To Next Page IconTo Next Page
To Previous Page IconTo Previous Page
To Previous Page IconTo Previous Page
Loading...
Page 9Ceramic Hob User Manual
Installation
5. When product is mounted on a drawer, if it is possible to touch lower side of product, this
section should be separated with a wooden shelf.
6. While mounting cooktop on a closet, as shown in the gure above, in order to separate
between closet and cooktop, a shelf should be mounted. If it is mounted on a built-in oven,
there is no need to do that.
7. If your cooktop will be mounted next to right or le wall, the minimum distance between
wall and cooktop should be 50 mm.
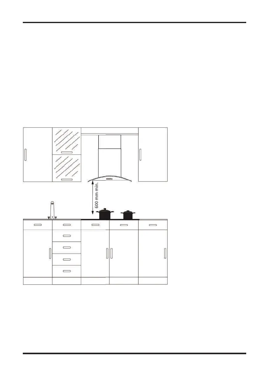
Correct Place For Installation:
Product is designed in
accordance with the kitchen
counters supplied from market.
A safe distance should be le
between the product and
kitchen walls and furniture.
If hood/aspirator will be
installed over your appliance,
obey to the recommendation
of hood/aspirator
manufacturer for assembly
height. (min. 60 cm) The gap
that cooktop is to be placed on
the counter should be cut in
line with cooktop installation
dimensions.
For installation of the product,
the rules speci ed in local
standards related to electricity
should be complied.

Related product manuals