EasyManua.ls Logo

Toshiba 1600EP Series - UPS Connections; Terminal Block

Toshiba 1600EP Series
64 pages
Print Icon
To Next Page IconTo Next Page
To Next Page IconTo Next Page
To Previous Page IconTo Previous Page
To Previous Page IconTo Previous Page
Loading...
11
1600EP Series Instruction Manual
UPS Connections
Terminal Block
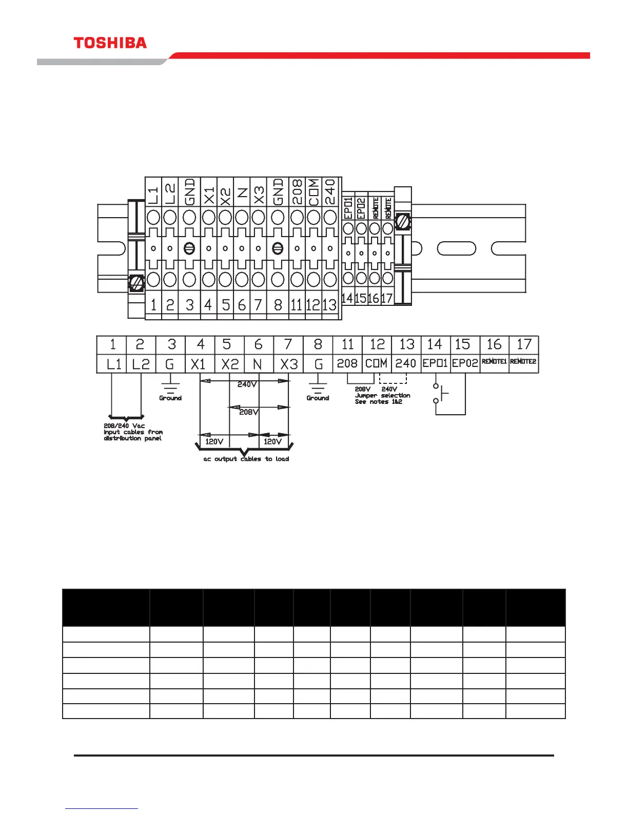
The following illustration is a detail view of the terminal block and wiring connections used for 208/240 volt
units (see pages 49-50 for terminal block location).
NOTE 1 If AC input power is 208 Vac rated, short terminals 11 and 12 with a jumper wire. DO NOT jumper terminal 13 to 12 or 11.
Factory Setting is 208Vac. Use the jumper wire provided by Toshiba. DO NOT add any additional jumpers.
NOTE 2 – If AC input power is 240 Vac rated, short terminals 12 and 13 with a jumper wire. DO NOT jumper terminal 11 to 12 or
13. Use the jumper wire provided by Toshiba. DO NOT add any additional jumpers.
Wire Size and Tightening Torque
Use the following table to select the recommended wire size and terminal lug tightening torque for I/O
wire connections.
Item
Terminal
Number
AWG
3.6RoHS
kVA
AWG
3.6 kVA
AWG
6 kVA
AWG
8 kVA
AWG
10 kVA
AWG
14-18 kVA
AWG
22 kVA
Tightening
Torque
lb.-in. (N•m)
AC Input Lines 1 and 2 12 (8) 12 (8)
10 (8) 8 (1/0) 6 (1/0) 4 (1/0) 1 (1/0)
14.2 (1.56)
AC Output Lines 4, 5, and 7 12 (8) 12 (8)
10 (8) 8 (1/0) 6 (1/0) 4 (1/0) 1 (1/0)
14.2 (1.56)
AC Output Neutral 6 12 (8) 12 (8)
10 (8) 8 (1/0) 6 (1/0) 4 (1/0) 1 (1/0)
14.2 (1.56)
Ground 3 and 8 12 (8) 12 (8)
10 (8) 8 (1/0) 6 (1/0) 4 (1/0) 1 (1/0)
14.2 (1.56)
EPO Switch 14 and 15 16 16 16 16 16 16 16 9.0 (0.99)
Remote Switch 16 and 17 16 16 16 16 16 16 16 9.0 (0.99)
Note: Wire size presented as the recommended size followed by a bold number in () that is the maximum wire size
the terminal block can accommodate. See page 48 for knock-out hole sizes on the back of each model.

Table of Contents

Other manuals for Toshiba 1600EP Series

Related product manuals