EasyManua.ls Logo

Toshiba MMY-MAP0804T8P-SG - Emergency Operation (Cooling Operation under Header Outdoor Unit Backup Scenario)

Toshiba MMY-MAP0804T8P-SG
325 pages
Print Icon
To Next Page IconTo Next Page
To Next Page IconTo Next Page
To Previous Page IconTo Previous Page
To Previous Page IconTo Previous Page
Loading...
– 67 –
TL
PMV1
TD2
TS1
SV2
TE1
SV3D
PMV2
TK2
SV3B
TK1
SV3A
HPS HPS
HPS
TD1
TK4
SV3E
TK5
SV41
SV42
PMV4
TE2
TD3
SV43
TK3
SV6
TO
SV3F
SV3C
SV
SV
SV
SV
SV
SV
SV
SV
SV
SV
SV
TC2
TCJ
TC1
TC2
TCJ
TC1
TC2
TCJ
TC1
TC2
TCJ
TC1
PMV
PMVPMV
PMV
TL
PMV1
TD2
TS1
SV2
TE1
SV3D
PMV
TK2
SV3B
TK1
SV3A
HPS HPS
HPS
TD1
TK4
SV3E
TK5
SV41
SV42
PMV
TE2
TD3
SV43
TK3
SV6
TO
SV3F
SV3C
SV
SV
SV
SV
SV
SV
SV
SV
SV
SV
SV
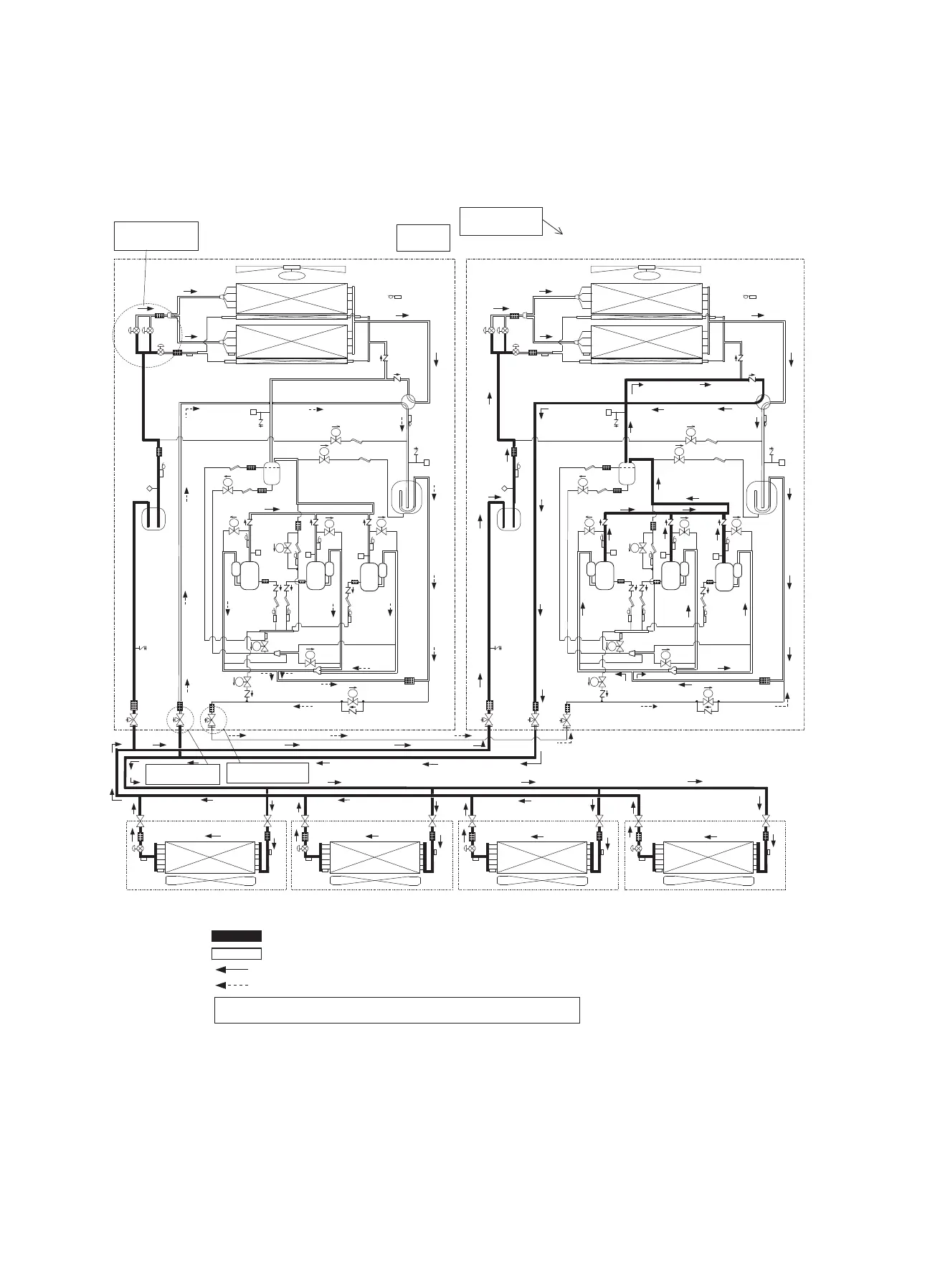
Failure
)*4061PAM-YMM( tinu rewolloF)*4061PAM-YMM( tinu redaeH
Leakage from PMV:
Liquid-side service valve
= Full closure
Set Up as Temporary
Header Unit during
Emergency Operation
FM
4-Way valve
Pressure sensor
(high pressure)
O.S.
Pressure sensor
(low pressure)
Accumulator
Liquid tank
Compressor
1
Compressor
2
Compressor
3
Gas-side service valve
= Full closure
Balance pipe packed valve
= Full opening
Balance pipe
Liquid pipe
Gas pipe
Liquid pipe
Gas pipe
Indoor unit
FM
4-Way valve
Pressure sensor
(high pressure)
O.S.
Pressure sensor
(low pressure)
Accumulator
Liquid tank
Compressor
1
Compressor
2
Compressor
3
Refrigerant recovery line
High-pressure gas or condensate liquid refrigerant
Evaporative gas refrigerant (low-pressure gas)
Normal refrigerant line
Note: The "header unit" is the outdoor unit to which the indoor-outdoor communication
line is connected. All other outdoor units are called "follower units".
(The diagram shows a 32 HP system
(16 HP + 16 HP) as an example.)
4-5. Emergency Operation (Heating Operation under
Header Outdoor Unit Backup Scenario)

Table of Contents

Related product manuals