EasyManua.ls Logo

Toshiba RAS-13NAX-V - Outdoor Unit

Toshiba RAS-13NAX-V
79 pages
To Next Page IconTo Next Page
To Next Page IconTo Next Page
To Previous Page IconTo Previous Page
To Previous Page IconTo Previous Page
Loading...
8
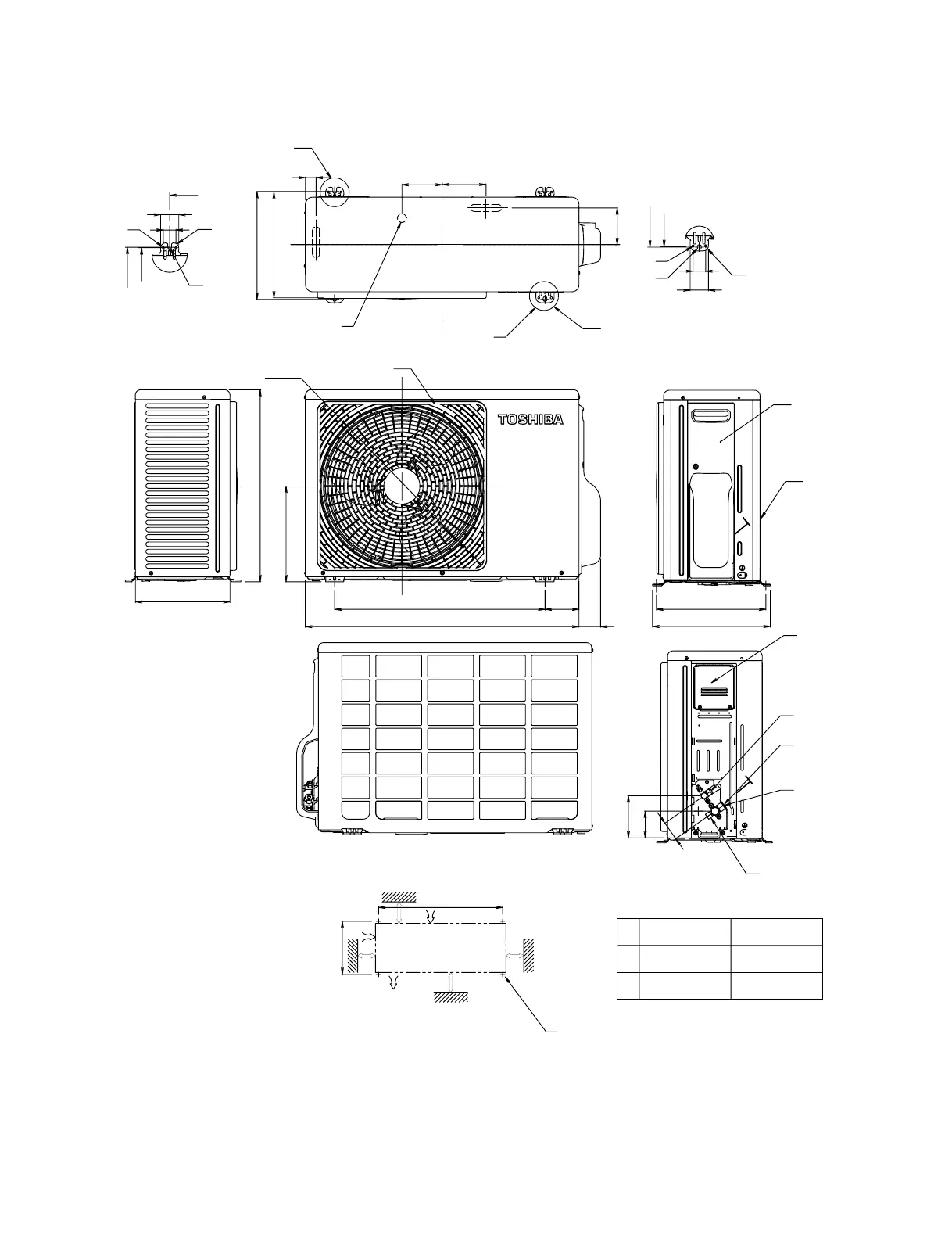
2-2. Outdoor Unit
310
310
302
102
310
302
302
550
265
600
A
Detail Drawing (Back Leg)
A
B Detail Drawing (Front Leg)
52
R15
32.5
115
125
R5.5
30 Drain outlet
FAN GUARD
36
6 Hole
2-
11 x 14 Hole
(For
8-
10 anchor bolt)
436
4 x
11 Long holes (For
8-
10 anchor bolt)
11 x 14 Hole
6 Hole
36
52
310
330
R15
270
600
90
780
62
COVER PV
Electrical
part cover
Liquid side
(Flare 6.35)
Gas side
(Flare 9.52)
10 Series
Gas side
(Flare 12.7)
12, 13 Series
Service port
600 or more
12,
13 Series
A
600 mm 400 mm
B 100 mm 45 mm
10 Series
B or more
A or more
100 or more
325
600
Air inlet
Air outlet
Installation dimension
120
75
54
B
Z
Z
View
FILE NO. SVM-06001

Table of Contents

Related product manuals