EasyManua.ls Logo

Toshiba RAS-18UKPX2 - Ras-24 Ukpx-1; Ras-24 Uax-1, Ras-24 Ukpx-T-1; Ras-24 Uax

Toshiba RAS-18UKPX2
88 pages
To Next Page IconTo Next Page
To Next Page IconTo Next Page
To Previous Page IconTo Previous Page
To Previous Page IconTo Previous Page
Loading...
13
FILE NO. SVM-03010(1)
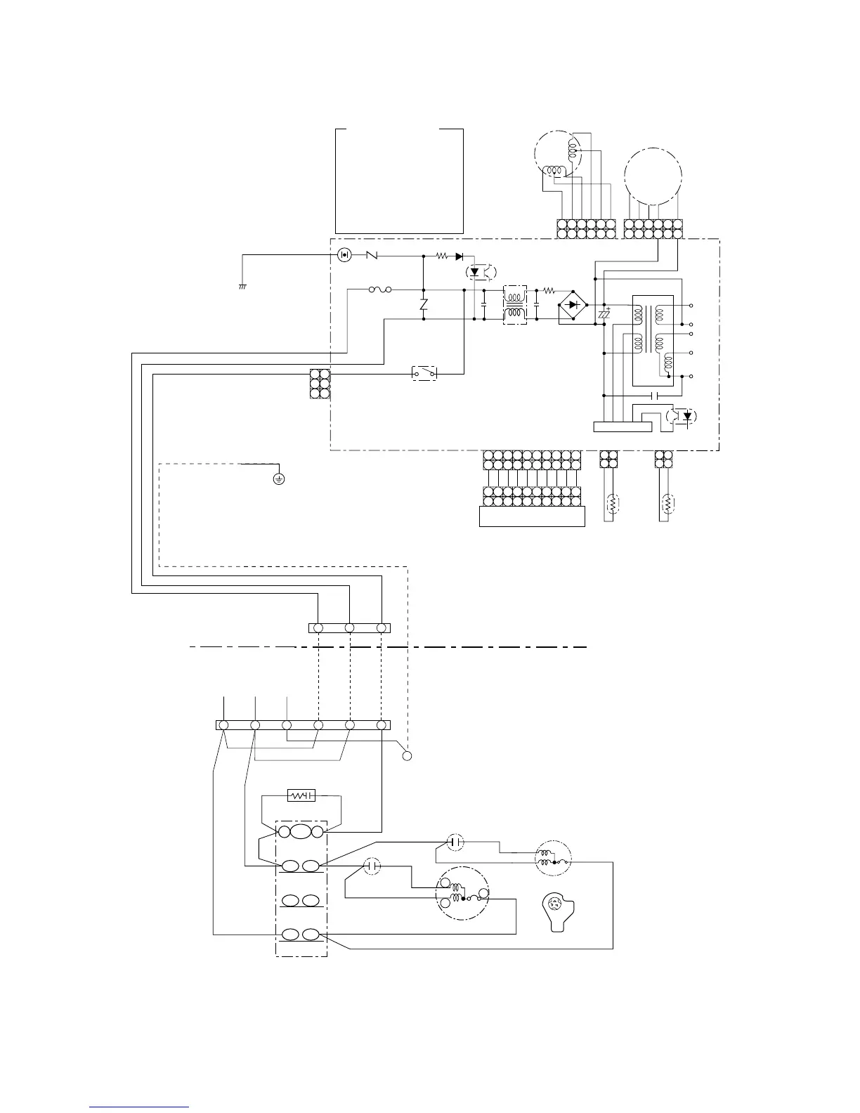
3-4. RAS-24UKPX-1 / RAS-24UAX-1, RAS-24UKPX-T-1 / RAS-24UAX-T-1
:
:
:
:
:
:
:
:
:
:
BROWN
RED
WHITE
YELLOW
BLUE
BLACK
GRAY
PINK
ORANGE
GREEN &
BRW
RED
WHI
YEL
BLU
BLK
GRY
PNK
ORN
GRN&YEL
COLOR IDENTIFICATION
1
2
3
4
6
5
PNK
YEL
ORN
RED
BRW
BLU
1
2
3
4
6
5
6
5
4
3
1
2
7 8 9
10
6
5
4
3
1
BLU
2
11
3
7 8 9
10
6
5
4
3
1
2
7 8 9
10
6
5
4
3
1
2
7 8 9
10
1
3
4
6
5
1
3
4
6
5
INFRARED RAYS RECEIVE
AND INDICATION PARTS
HEAT
EXCHANGER
SENSOR
(TC)
THERMO
SENSOR
(TA)
1
2
1
2
1
2
1
2
CN03 CN01
CN25
CN13
BLK
BLK
BLK
BLK
F01 FUSE
RY04
DB01
FAN MOTOR
LOUVER
MOTOR
MAIN P.C. BOARD
(MCC-821)
L01
BLU
BLU
BLU
BLU
BLU
BLU
BLU
BLU
WHI
DC MOTOR
CN 07
CN 10
C02
C06
IC02
IC01
IC
T01
IC04
C15
BLK
WHI
GRN&YEL
RED
C01
R01
R09
R21
R22
BLK
P04
SG01
DSA
VARISTOR
T6.3A 250 V
DC15V
DC0V
DC12V
DC7V
DC0V
CN30
CN31
CN27
:
GREENGRN
YELLOW
3
1
2
i
L
N
3
1
2
i
GRN&YEL
RED
RED
RED
RED
BLK
BLK
CHASSIS
GRY
POWER SUPPLY
220 240 V ~ 50 Hz
220 V ~ 50 Hz (FOR
RAS-24UAX-T-1 MODEL ONLY)
SPARK KILLER
MAGNETIC CONTACTOR
BLK BLK
RED
A1 A2
52C
R
1/L1
U
SV
TW
2/T1
3/L2 4/T2
5/L3 6/T3
COMPRESSOR
WHI
PNK
BLK
C
S
R
CAPACITOR
CAPACITOR
WHI
RED
FAN MOTOR
BLK
COMPRESSOR TERMINAL
C
SR
INDOOR
TERMINAL
BLOCK
OUTDOOR
TERMINAL
BLOCK
INDOOR
UNIT
OUTDOOR
UNIT

Table of Contents

Related product manuals