EasyManua.ls Logo

Trane 4NXCD063BC3HCA - Page 10

Trane 4NXCD063BC3HCA
12 pages
Print Icon
To Next Page IconTo Next Page
To Next Page IconTo Next Page
To Previous Page IconTo Previous Page
To Previous Page IconTo Previous Page
Loading...
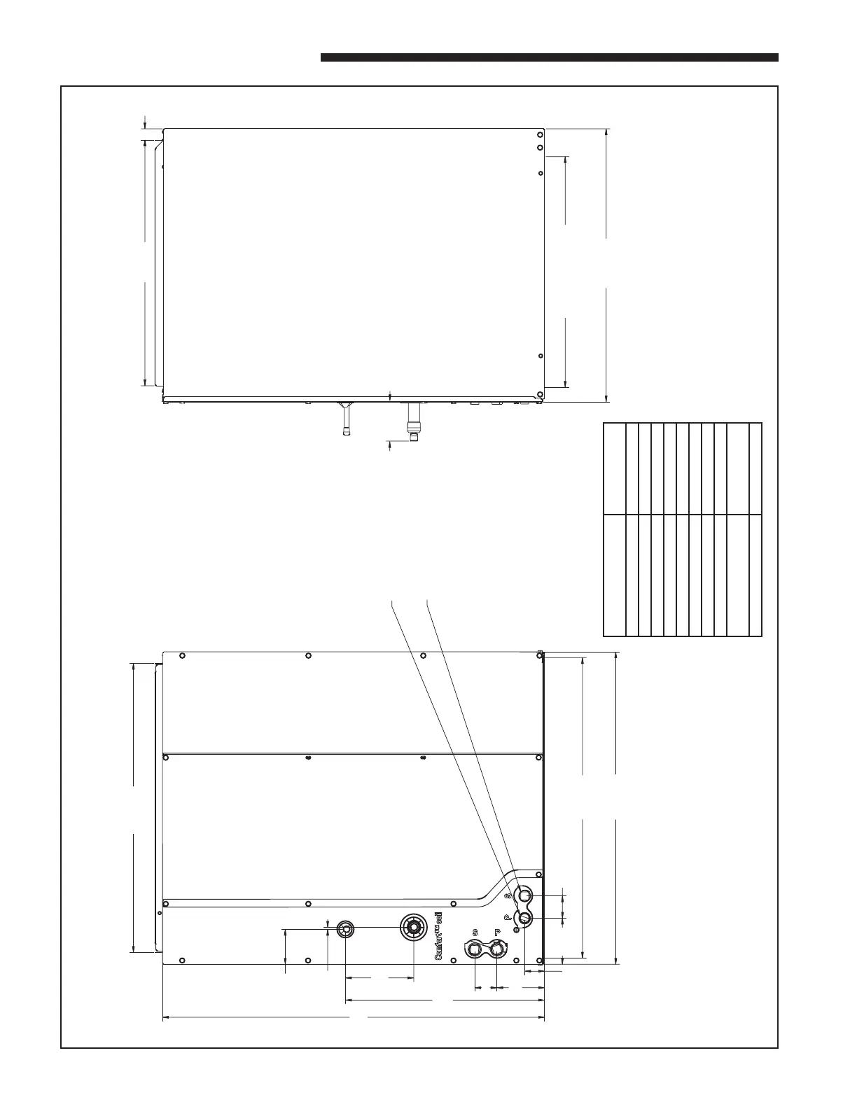
10 18-AD28D1-2
Installer’s Guide
From Dwg. D344723
Outline Drawing for 4NXCD063BC3HCA
(All dimensions are in inches)
22-3/4
2-3/4
1/8
30
5-3/8
15-5/8
1-3/4
3-3/4
1-9/16
3-1/2
1-3/4
23-5/8
24-1/2
PLUGGED
SECONDARY DRAIN
3/4” NPT
FOR VERTICAL POSITION
PRIMARY DRAIN
3/4” NPT
FOR VERTICAL POSITION
18-1/8 OPENING
IN WRAPPER
21-1/2
3-1/8
7/8
19-3/8
MODEL 4NXCD063BC3HCA
WEIGHT (LBS.) 80
REFRIGERANT CONTROL TXV (NON-BLEED)
HEIGHT (IN.) 30-1/4
OVERALL WIDTH (IN.) 24-1/2
OPENING WIDTH (IN.) 23-5/8
TOP OPENING 22-3/4
GAS CONNECTION 7/8 BRAZE
LIQUID CONNECTION 3/8 BRAZE
MATCHED FURNACE WIDTH
(NO ADAPTER REQUIRED)
24-1/2
DRAIN PAN PLASTIC

Related product manuals