EasyManua.ls Logo

Trane 4TEP3F24A1000A - Reference and Checkout Procedures; Outline Drawings and Mounting

Trane 4TEP3F24A1000A
12 pages
To Next Page IconTo Next Page
To Next Page IconTo Next Page
To Previous Page IconTo Previous Page
To Previous Page IconTo Previous Page
Loading...
Installer's Guide
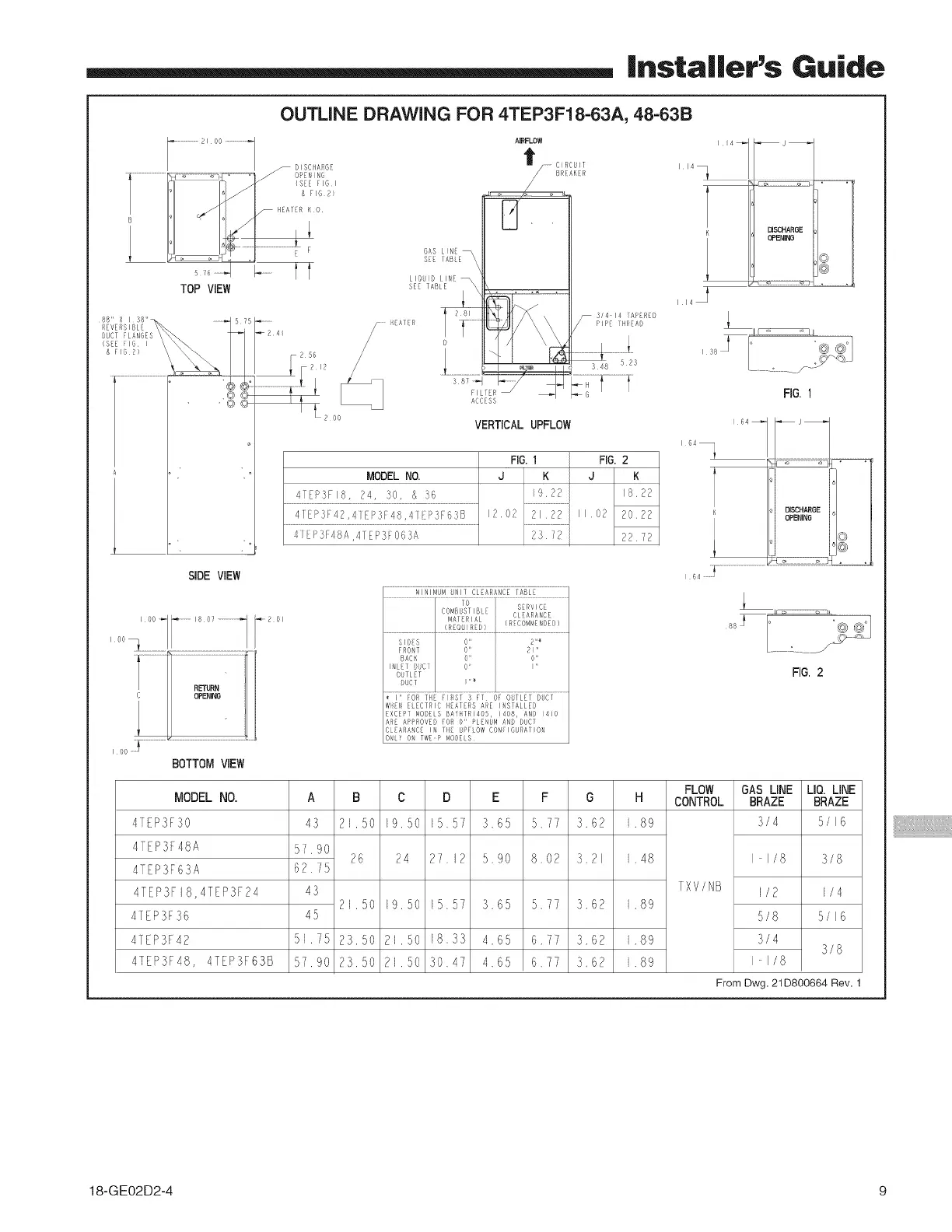
OUTLINE DRAWING FOR 4TEP3F18-63A, 48-63B
AIRFLOW
CIRCUIT
BREAKER
114 7
T
K
TOP VIEW
o
s s7,,,d
FILTER
ACCESS
VERTICAL UPFLOW
MODELNO.
4TEP3FI8, 24, S0, & 36
41EPSF42,41EP3F48,418P3F63B
4TFP3F48A 4TEP3FO63A
FIG.I FIG.2
d K , K
_9,22 18.22
12.02 2122 }102 2022
2372 2272
SIDE VIEW
i O0
I 00_ ...................
C OPENING
oo }
BOTTOM VIEW
I" FOR THE FIRST 3 FT OF OUTLET DUC(
WHEN ELECTRIC HEALERS ARE HqS[AL/ED
EXCEPT MODELS BAYHTRI405, 1408, AND 1410
ARF APPROVED FO_ 0" PLENUM AND DUCT
CLFARAHCE IN [HE UPFLOW CONFIGUI_ATIO_
ONLY ON TWEP MODELS¸
114 _
K
I 64_
FIG.I
_j_
: OPENINGDISCHARQE_/I'i /
88 _
FIG.2
MODELNO. A
4]EP3FSO 43
4fEP3F48A 57.90
4TEP3F63A 62.75
4TEP3FIS,4TEP3F24 43
4]EPSF36 45
4TEP3F42 51.75
4TEP3F48, 4TEP3F63B 57.90
B C D E F G H
21.50 19.50 15.51 3.65 5.1! 3.62 1.89
26 24 27.12 5.90 8.02 3.21 1.48
21.50 19.50 15.57 3,65 5,77 3.62 1.89
23.50 21.50 18.33 4.65 6.77 3.62 1.89
23.50 21.50 30.47 4.65 6.77 3,62 1,89
FLOW
CONTROL
TXV/NB
GAS LINE
BRAZE
3/4
11/8
I/2
5/8
5/4
I-I/8
LIO. LINE
BRAZE
5/}6
5/8
I/4
5/16
5/8
From Dwg. 21D8OO664 Rev.
18-GEO2D2-4 9

Related product manuals