EasyManua.ls Logo

Tri-Clover C216 - Page 12

Default Icon
24 pages
Print Icon
To Next Page IconTo Next Page
To Next Page IconTo Next Page
To Previous Page IconTo Previous Page
To Previous Page IconTo Previous Page
Loading...
12
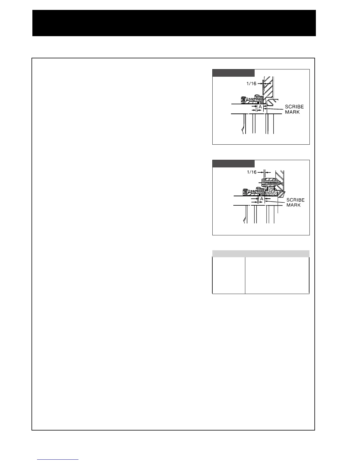
Setting the Drive Collar by Measurement
1. Install the backplate, gasket and casing.
2. Install and tighten casing clamp.
3. At a location behind the backplate scribe a mark on the
shaft. See Figure 2 or 3.
4. Remove casing clamp, casing, & backplate.
5. Slide the drive collar onto the shaft.
6. Locate drive collar in relation to the scribe mark as shown
in dimension A and secure to the shaft with the set screws.
Drive collar location is critical.
7. Install the seal spring, seal cups, seal o-ring and carbon
onto the shaft.
SETTING THE DRIVE COLLAR BY POSITION
1. Assemble the spring, seal cup, o-ring seal, and carbon seal
onto the drive collar. Care must be taken so that the spring
does not rest on the tab that is bent back. A portion of the
spring is offset to provide clearance for this tab. Care must
be taken to ensure that pin on drive collar is in line with slot
on cup.
2. Install as a unit on the shaft.
3. Install the backplate and casing.
4. Install and tighten the casing clamp.
5. Slide the drive collar and seal assembly toward the
backplate until the nose of the drive collar pushes the
o-ring and carbon seal tight against the backplate.
6. Slide the drive collar away from the backplate
1
/32" (.79mm) and secure the drive collar in this
location with the set screws.
Note:
Extra care should be taken when assembling “C" series pumps with type DG or FG seals.
Incorrect stub shaft settings will allow the impeller hub to contact the inboard face of the
stationary seal seat. Interference of impeller hub and seal seat face will cause wear of
impeller hub and damage the inboard or secondary seal face of the clamped-in-seat. Visual
inspection is recommended after installation of the impeller, and before installation of casing,
to ensure clearance between the impeller hub and seal face. If no clearance is visible, the
pump should be disassembled and stub shaft moved forward, to provide at least
1
/32"
(.79mm) clearance between the impeller hub and seal seat face. Reset seal drive collar if
necessary.
7. When the drive collar is properly positioned and seal components are properly installed, the pump
shaft should rotate freely by hand. If excessive effort is required to rotate the shaft, check to be
sure that all components are properly installed and the drive collar is properly positioned.
MAINTENANCE
1.5mm
1.5mm
D/F Seals
Figure Two
Model "A" Dimension
C114
11
/32" (2.3mm)
C216
11
/32" (2.3mm)
C218
11
/32" (2.3mm)
C328
11
/32" (2.3mm)
C4410
11
/32" (2.3mm)
DG/FG Seals
Figure Three
3/32" (2.5mm)
3/32" (2.5mm)

Related product manuals