EasyManua.ls Logo

UE H400 - H Types Re-Calibration; Dimensions and Hardware; Unit Dimensions; Option M210 Dimensions

Default Icon
4 pages
Print Icon
To Next Page IconTo Next Page
To Next Page IconTo Next Page
To Previous Page IconTo Previous Page
To Previous Page IconTo Previous Page
Loading...
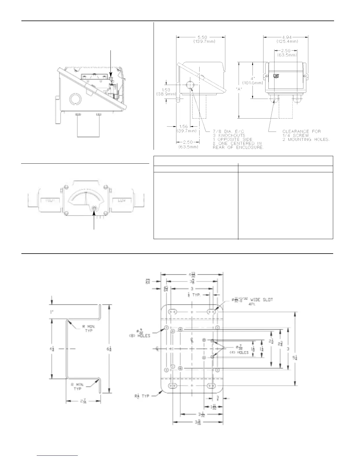
Dimension A
Models Inches mm NPT Models Inches mm NPT
Pressure Pressure
126-164 5.81 146,84 1/4 551, 553-555 4.56 115,88 1/4
S126B-S164B 6.19 157,16 1/2 550, 552 5.03 127,79 1/4
270-376 5.50 139,70 1/4 570-572 4.56 115,89 1/4
440-443, 449, 610-614 6.44 163,58 1/4
451, 453, 454 4.28 108,74 1/4 Differential Pressure
448, 450, 452 5.03 127,79 1/4 147-157 6.13 155,57 1/4
520-525 8.62 218,90 1/2 S147B-S157B 6.13 155,57 1/2
530-535 8.12 206,20 1/2 455-559 7.00 178,05 1/4
540-543 7.90 200,7 1/8
544-547 8.06 204.7 1/8
Option M210 - Differential Pressure Indication
Surface Mounting Hardware
Part Number 6361-704º
Dimensions
Figure 3
Span Adjust Screw
Figure 2
Zero Adjust Screw
Re-Calibration Adjustment - H Types