EasyManua.ls Logo

Ugolini MT GL

Ugolini MT GL
24 pages
Go to English
To Next Page IconTo Next Page
To Next Page IconTo Next Page
To Previous Page IconTo Previous Page
To Previous Page IconTo Previous Page
Loading...
23
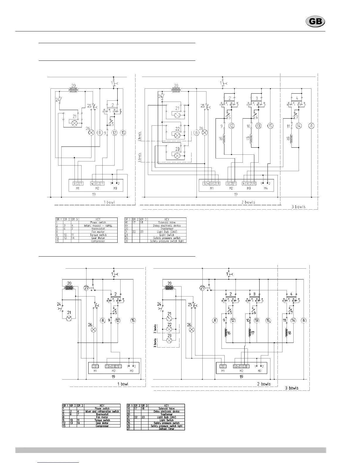
16 WIRING DIAGRAMS (MACHINES MANUFACTURED AFTER JANUARY 2002)
16. 1 GLS VERSION
16. 2 GL/UL

Other manuals for Ugolini MT GL