EasyManua.ls Logo

VentilClima VCE10 - Page 4

Default Icon
48 pages
Print Icon
To Next Page IconTo Next Page
To Next Page IconTo Next Page
To Previous Page IconTo Previous Page
To Previous Page IconTo Previous Page
Loading...
TECHNICAL MANUAL
range
333
395 120
173
3/4" G
1/2" G
115
62
39
141
278
153
72
167
234 234
167
167
Ø20
Ø20
389 120
308
215
62
113
62
76
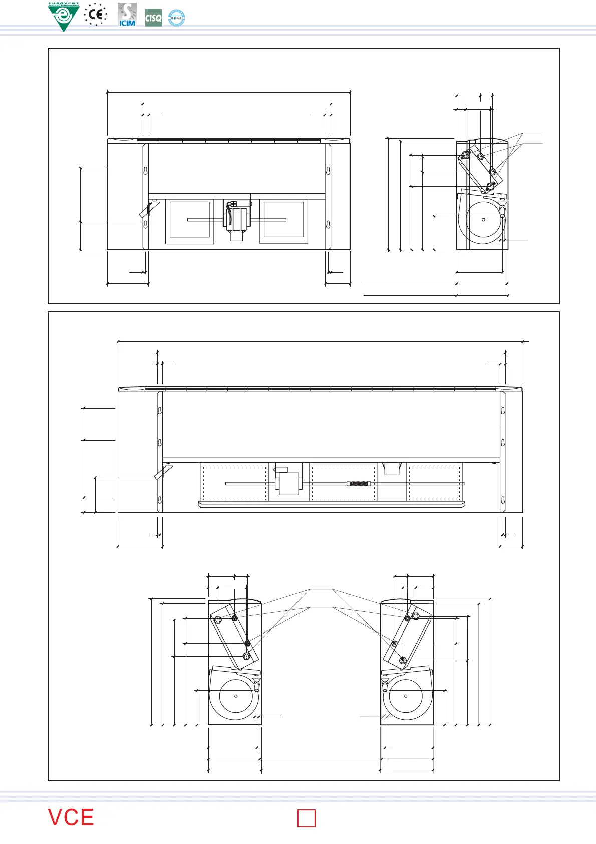
MODEL VCE 70, 80, 90
MODEL VCE 100, 110, 120
Height with cabinet 585
Height without cabinet 580
286
374 124
253
200
Depth without cabinet 220
Depth with cabinet 225
3/4" G
1/2" G
101
52
41
107
Ø 20
147
122 253
Lenght with cabinet [ L ]
Lenght without cabinet [ M ]
Depth without cabinet 252
Depth with cabinet 257
Height without cabinet 585
Height with cabinet 602
Height without cabinet 585
Height with cabinet 602
LEFT VERSION RIGHT VERSION
25 25
Lenght without cabinet [ M ]
Lenght with cabinet [ L ]
12
173
12
108
12
216
12
116
25 25
ISO 9001:2000 - Cert. n. 1368/1
4

Related product manuals