EasyManua.ls Logo

VentilClima VCE20 - General Dimensions and Datas

VentilClima VCE20
48 pages
Print Icon
To Next Page IconTo Next Page
To Next Page IconTo Next Page
To Previous Page IconTo Previous Page
To Previous Page IconTo Previous Page
Loading...
TECHNICAL MANUAL
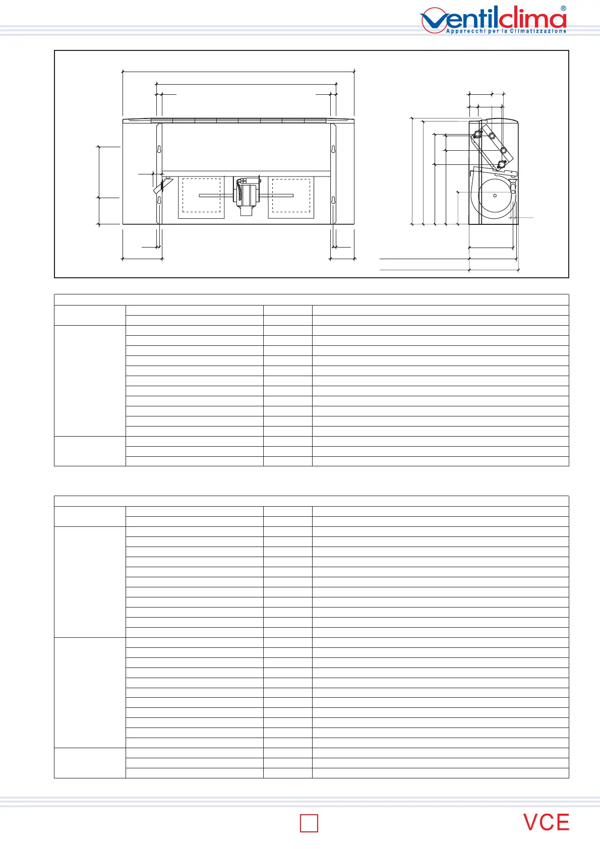
FAN-COIL GENERAL DIMENTIONS FOR 2 PIPE SYSTEM (VCE10-60)
FAN-COIL GENERAL DIMENTIONS FOR 4 PIPE SYSTEM (VCE10-60)
Height with cabinet 480
274 137
337 67
103 53
39
109
Ø20
147
200
Lenght without cabinet [ M ]
Lenght with cabinet [ L ]
122 233
Height without cabinet 460
Depth with cabinet 225
Depth without cabinet 220
25
25
12
179
12
108
34
Fans number 1 1 2 2 2 2
Coils number 2 2 2 2 2 2
Rows number 3 3 3 3 3 3
Finned pack length mm 290 490 690 690 890 890
Number of pipes for row 8 8 8 8 8 8
Fin spacing mm 2,1 2,1 2,5 2,1 2,5 2,1
Number of feeding circuits 3 3 3 3 3 3
Shape mm x mm 25 x 22 25 x 22 25 x 22 25 x 22 25 x 22 25 x 22
Finned pack depth mm 66 66 66 66 66 66
Frontal surface m2 0,058 0,098 0,138 0,138 0,178 0,178
Fins total surface m2 3,278 5,538 6,635 7,798 8,558 10,059
Water content litri 0,59 0,93 1,27 1,27 1,61 1,61
Hydraulic connections (Ø female gas) Ø 3/4" 3/4" 3/4" 3/4" 3/4" 3/4"
Rows number 1 1 1 1 1 1
Finned pack length mm 280 480 680 680 880 880
Number of pipes for row 8 8 8 8 8 8
Fin spacing mm 2,1 2,1 2,5 2,1 2,5 2,1
Number of feeding circuits 1 1 1 1 1 1
Shape mm x mm 25 x 25 25 x 25 25 x 25 25 x 25 25 x 25 25 x 25
Finned pack depth mm 25 25 25 25 25 25
Frontal surface m2 0,056 0,096 0,136 0,136 0,176 0,176
Fins total surface m2 1,233 2,115 2,544 2,996 3,292 3,877
Water content litri 0,19 0,31 0,42 0,42 0,53 0,53
Hydraulic connections (Ø female gas) Ø 1/2" 1/2" 1/2" 1/2" 1/2" 1/2"
Lenght with cabinet L (mm) 660 860 1060 1060 1260 1260
Lenght without cabinet M (mm) 420 620 820 820 1020 1020
Net weight kg 15 18 23 24 28 29
MODELLO VCE10 VCE20 VCE30 VCE40 VCE50 VCE60
Cooling coil
Heating coil
General features
MODEL VCE10 VCE20 VCE30 VCE40 VCE50 VCE60
Fans number 1 1 2 2 2 2
Coils number 1 1 1 1 1 1
Rows number 3 3 3 3 3 3
Finned pack length mm 290 490 690 690 890 890
Number of pipes for row 8 8 8 8 8 8
Fin spacing mm 2,1 2,1 2,5 2,1 2,5 2,1
Number of feeding circuits 3 3 3 3 3 3
Shape mm x mm 25 x 22 25 x 22 25 x 22 25 x 22 25 x 22 25 x 22
Finned pack depth mm 66 66 66 66 66 66
Frontal surface m2 0,058 0,098 0,138 0,138 0,178 0,178
Fins total surface m2 3,278 5,538 6,635 7,798 8,558 10,059
Water content litri 0,59 0,93 1,27 1,27 1,61 1,61
Hydraulic connections (Ø female gas) Ø 3/4" 3/4" 3/4" 3/4" 3/4" 3/4"
Lenght with cabinet L (mm) 660 860 1060 1060 1260 1260
Lenght without cabinet M (mm) 420 620 820 820 1020 1020
Net weight kg 14 17 22 23 27 28
Coil used for both
cooling and heating
General features
range
3

Related product manuals