EasyManua.ls Logo

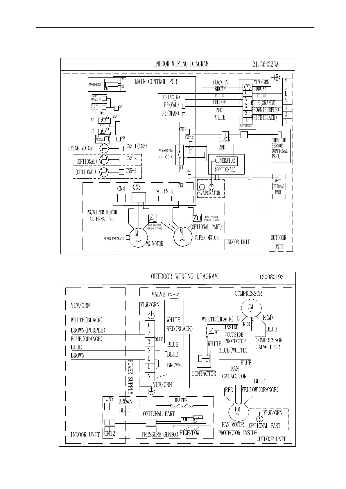
Venting VAC-09CHSA/XA21 PLUS - 5.1 Wiring Diagram Details by Model

Venting VAC-09CHSA/XA21 PLUS
39 pages
Print Icon
To Next Page IconTo Next Page
To Next Page IconTo Next Page
To Previous Page IconTo Previous Page
To Previous Page IconTo Previous Page
Loading...
Air Conditioner Service Manual
13
MODEL: VAC-24CHSA/XA21 PLUS
INDOOR UNIT
θ
θ
OUTDOOR UNIT

Related product manuals