EasyManua.ls Logo

Viessmann VITOCAL 111-S - Page 16

Viessmann VITOCAL 111-S
128 pages
Print Icon
To Next Page IconTo Next Page
To Next Page IconTo Next Page
To Previous Page IconTo Previous Page
To Previous Page IconTo Previous Page
Loading...
16
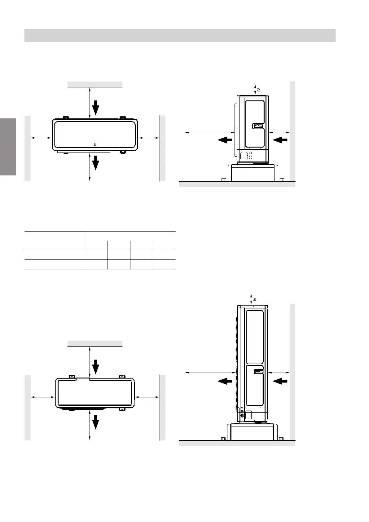
Minimum clearances
Outdoor unit with 1 fan
A
B
A
B
a
b
c
d
d
b
200
Fig. 5
A
Air discharge
B
Air intake
d Minimum clearance for service and maintenance
Cable entry Dimensions in mm
a b c d
Above ground level 100 100 300 1000
Below ground level 100 400 300 1000
Outdoor unit with 2 fans
A
B
A B
a
b
c
d
d
b
200
Fig. 6
A
Air discharge
B
Air intake
d Minimum clearance for service and maintenance
Installation sequence
Installing the outdoor unit (cont.)
6199592
Installation

Related product manuals