EasyManua.ls Logo

VMAX V6 - Page 15

Default Icon
16 pages
Print Icon
To Next Page IconTo Next Page
To Next Page IconTo Next Page
To Previous Page IconTo Previous Page
To Previous Page IconTo Previous Page
Loading...
15
ENGLISH
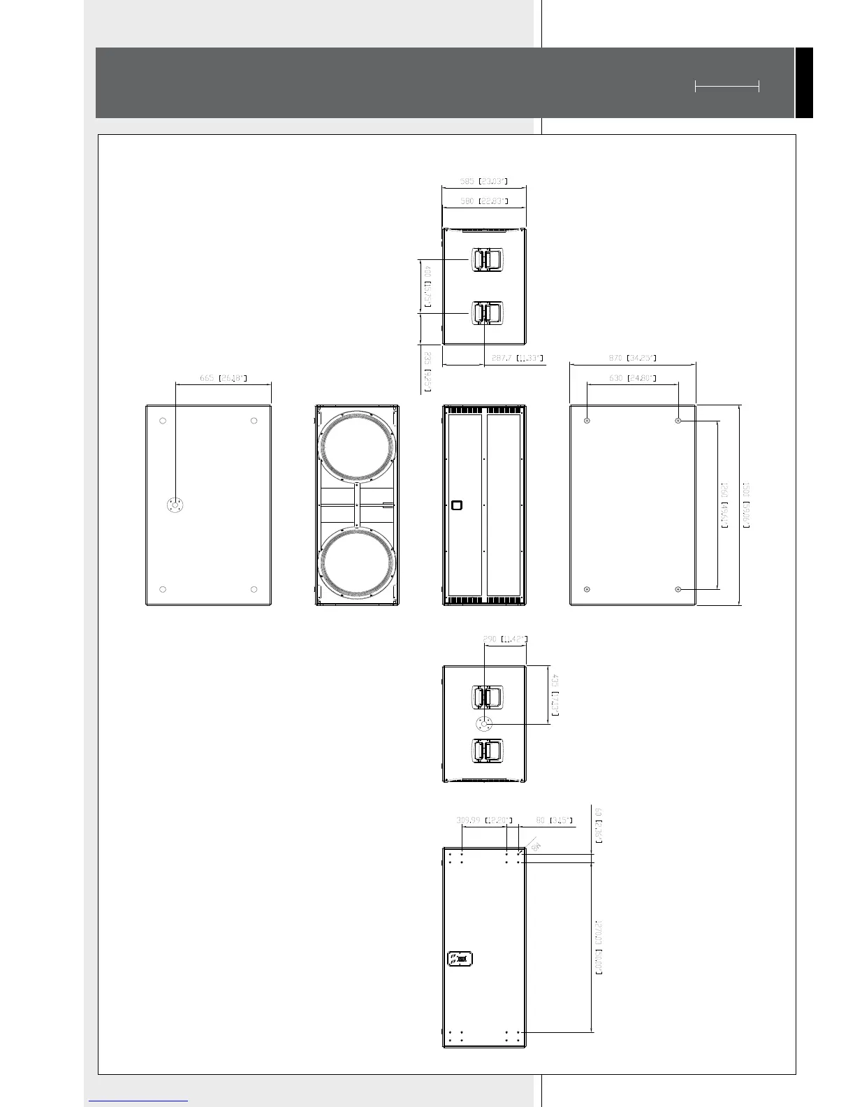
V221-S
mm