EasyManua.ls Logo

Wells SC7 - Page 15

Wells SC7
24 pages
Print Icon
To Next Page IconTo Next Page
To Next Page IconTo Next Page
To Previous Page IconTo Previous Page
To Previous Page IconTo Previous Page
Loading...
WIRING DIAGRAM: SC6423WA-230
13
004 p/n 305145 OpM LL-Series Warmers
DVP
E
SEE FCN-Proposal
5-22-09
.
8 1/2 X 11
.
D.C
D.C
.000 =.005
-
+
.00 =.020
-
+
.0 =.030
+
-
47501
R.W
SOUP COOKER 6407,6411
WIRING DIAGRAM
08-17-92
R.W
ENG. REL. FCN-7000
(-)
WELLS
BY APP
UNLESS NOTED
-
+
ANG.
DEC.
TOL.
PART NO.
VERDI, NV.
PART NAME
USED ON
SCALE DWN. ENG.
CKD.
DO NOT SCALE DWG.
MATERIAL
REVISIONS
ISSUE
WAS
DATE
1
O
*
NONE
.
(E)
47501
ISSUE
SH. OF
11
BLOOMFIELD
6423EU, 6417J
D.C
01-23-95
B.C
SEE FCN-8581
A
D.C
07-10-97
DTL
SEE FCN-9695
B
DTL
D.C
05-22-98
DTL
SEE FCN-10198
C
DTL
.
12- -98
DTL
SEE FCN-10440
D
DTL
4.2
998
220-240
6423EU
REV.: E P/N 47501
1 PHASE
AMPS PER
WATTSVOLTS
MODEL
8.3 / 4.2
8.3 / 4.2
998
998
120 / 240
120 / 240
6407
6411
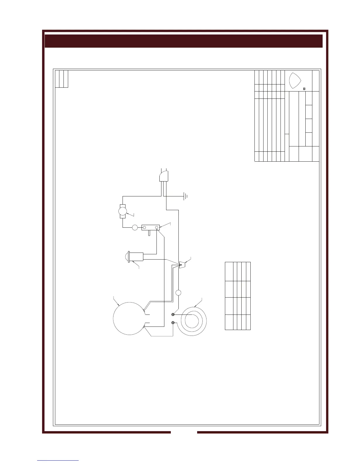
WIRING DIAGRAM FOR SOUP COOKER
HIGH LIMIT
THERMOSTAT
PILOT LIGHT
WIRE NUT
BOTTOM HEATING ELEMENT
BAND HEATING ELEMENT
GRN.
BLACK
WHITE
1
4
MODELS 6407, 6411, 6423EU, 6417J
10.7
1075
100
6417J