EasyManua.ls Logo

Wolf CT36G - Installation of Cooktop Above Built-in Oven; Cabinet and Clearance Requirements

Wolf CT36G
7 pages
Print Icon
To Next Page IconTo Next Page
To Next Page IconTo Next Page
To Previous Page IconTo Previous Page
To Previous Page IconTo Previous Page
Loading...
Planning Information
Model CT36G 36" (914) Gas Cooktop
Dimensions in parentheses are in
millimeters unless otherwise specified.
6
9"*min (229)
CUT-OUT TO
COMBUSTIBLE
MATERIALS
(BOTH SIDES)
18"
(457)
19
1
/4" (489)
COOKTOP CUT-OUT
DEPTH
2
1
/2"min
(64)
36" (914)
STANDARD
FLOOR TO
COUNTERTOP
HEIGHT
13" max
(330)
30" (762)
COUNTERTOP TO
COMBUSTIBLE
MATERIALS
ABOVE COOKTOP
2
1
/2"**
(64)
*Minimum clearance from both side edges of cooktop cut-out to combustible materials up to 18" (457) above countertop.
**Minimum clearance from rear edge of cooktop cut-out to combustible materials up to 18" (457) above countertop.
Unless you are using cabinets deeper than 24" (610), the electrical supply for the oven and the gas and electrical supply for the cooktop should
be located in the adjacent right side cabinet as shown.
35" (889)
COOKTOP CUT-OUT WIDTH
39" (991)
RECOMMENDED CABINET WIDTH
36"min (914)
E
G
3
1
/2" (89)
COOKTOP
GAS SUPPLY AND
ELECTRICAL LOCATION
IN ADJACENT RIGHT
SIDE CABINET
10" (254)
24" min (610)
3
3
/4"min (95)
7
3
/4" (197) rec
4
3
/4" (121) min
E
5"
(127)
34
1
/2" (876)
OVEN OPENING WIDTH
4"
(102)
OVEN ELECTRICAL
LOCATION WITHIN
OPENING APPLIES ONLY
TO CABINETS DEEPER
THAN 24" (610)
E
24
1
/16"
(611)
4" (102)
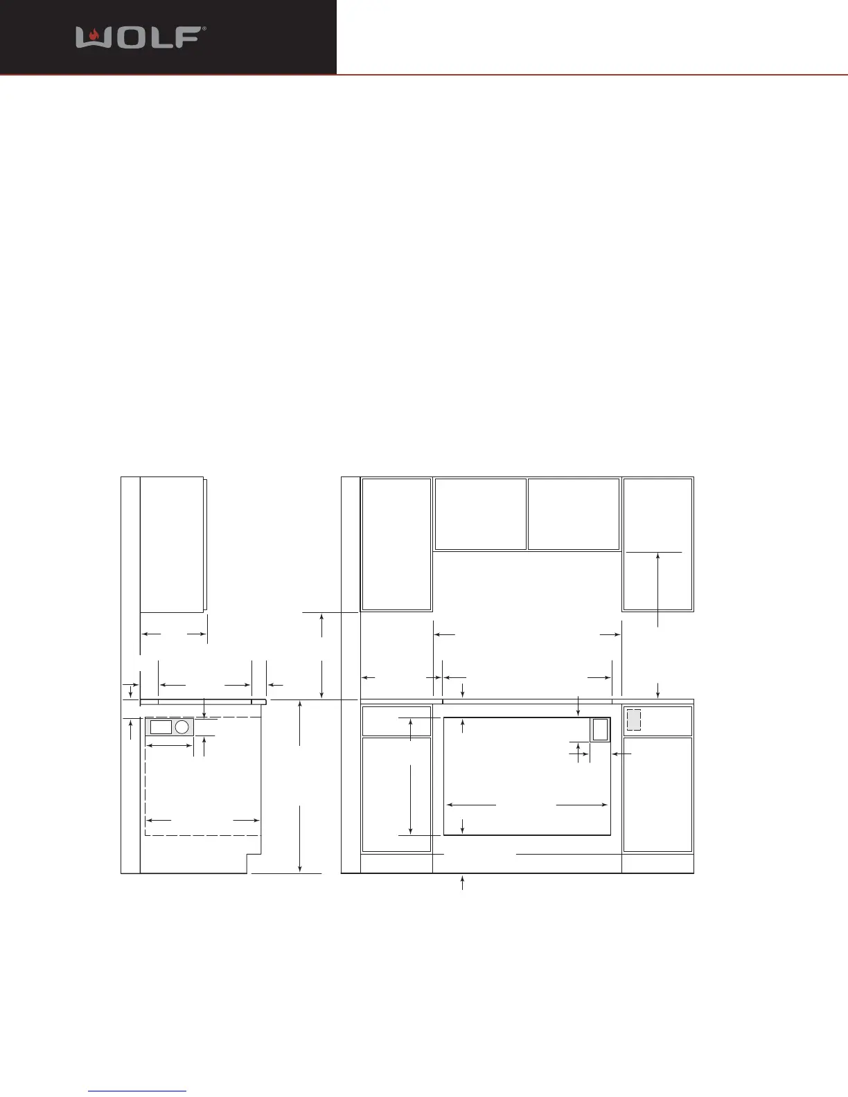
Installation specifications for a 36" (914) gas cooktop installed above a 36" (914) built-in oven.
INSTALLATION OF 36" GAS
COOKTOP ABOVE A BUILT-IN OVEN
A Wolf 36" (914) gas cooktop may be installed
above the Wolf 36" (914) built-in single oven.
Refer to the illustration below for specifications.
The 36" (914) gas cooktop may also be installed
above a Wolf 30" (762) single oven.
IMPORTANT NOTE: When a oven is installed
below the cooktop, unless you are using
cabinets deeper than 24" (610), it is recom-
mended that the electrical supply for the oven
and the gas and electrical supply for the cooktop
be located in the adjacent right side cabinet. A
2" (51) diameter hole to route the conduit
through cabinetry will be required.
IMPORTANT NOTE: Wolf gas cooktops are
designed and agency approved for installation
with Wolf built-in ovens only.
Wolf recommends using 39" (991) wide cabinets
for this installation. A minimum 24" (610) of
usable cabinet depth is required. The cabinet
base must be able to support 250 lbs (113 kg).
It is recommended that the rough opening for
the oven be 7
3
/4" (197) from the floor to ease
use of the oven door.
A Wolf 36" (914) gas cooktop may also be
installed above the Wolf 30" (762) single oven.
For electrical requirements and additional
specifications for the built-in oven, refer to the
Built-In Ovens section of our website,
wolfappliance.com.

Other manuals for Wolf CT36G

Related product manuals