EasyManua.ls Logo

York AFFINITY DEZ048 - Page 65

York AFFINITY DEZ048
72 pages
Print Icon
To Next Page IconTo Next Page
To Next Page IconTo Next Page
To Previous Page IconTo Previous Page
To Previous Page IconTo Previous Page
Loading...
294604-YTG-G-0511
Johnson Controls Unitary Products 65
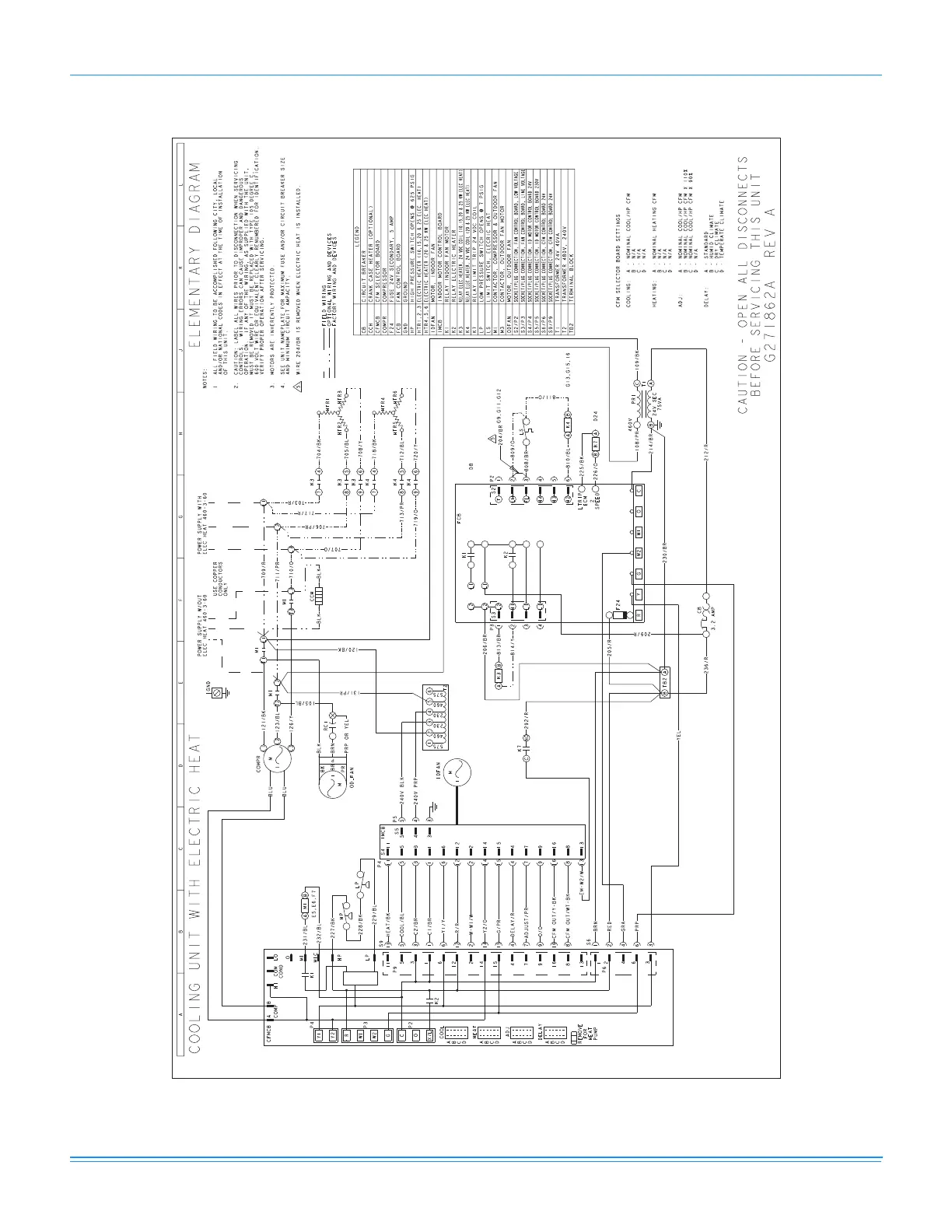
Typical DEX036-048/DEY060 Cooling Only 460-3-60 volt Wiring Diagram

Related product manuals