EasyManua.ls Logo

York Champion Series - Ratings; Physical Data

York Champion Series
28 pages
To Next Page IconTo Next Page
To Next Page IconTo Next Page
To Previous Page IconTo Previous Page
To Previous Page IconTo Previous Page
Loading...
66297-YIM-C-0205
4 Unitary Products Group
TABLE 3 - PHYSICAL DATA
MODELS
BHH
018 024 030 036 042 048 060
INDOOR
BLOWER
CENTRIFUGAL BLOWER (Dia. x Wd. in.) 9 X 6 10 X 8 10 X 8 10 x 8 11 x 10 11 x 10 11 x 10
FAN MOTOR HP (Three Speed)
!
"
!
"
!
"
1
INDOOR
COIL
ROWS DEEP 2233333
FINS PER INCH 15 15 13 15 16 16 16
FACE AREA (Sq. Ft.) 4.38 4.38 4.38 4.38 5.63 5.63 5.63
OUTDOOR
FAN
PROPELLER DIA. (in.) 22 22 22 22 22 22 22
FAN MOTOR HP
"
"
"
"
"
"
"
NOM. CFM TOTAL 1,800 1.800 1,800 2,400 2,400 3,000 3,000
OUTDOOR
COIL
ROWS DEEP 1112222
FINS PER INCH 20 20 20 20 20 20 20
FACE AREA (Sq. Ft.) 8.3 11.7 11.7 11.7 16.4 16.4 16.4
CHARGE REFRIGERANT 22 (lbs./oz.) 5 / 6 5 / 5 6 / 5 8 / 12 11 / 8 12 / 0 9 / 0
FILTER FACE AREA (Sq. Ft. / Qty. / Size) 4.28 / 2 / 14" x 22"
COMPRESSOR HERMETIC Type, (Qty. = 1)
Reciprocating Reciprocating Scroll Scroll Scroll Scroll Scroll
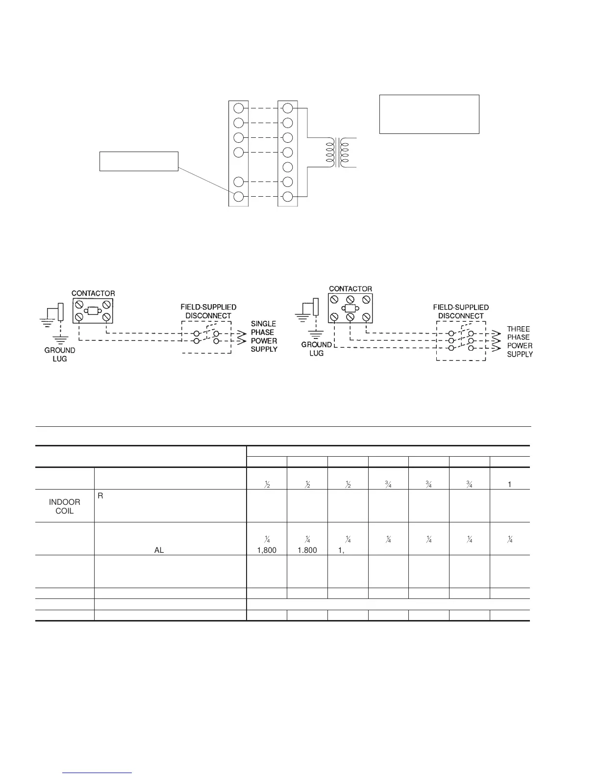
FIG. 2 - TYPICAL FIELD WIRING DIAGRAM
POWER WIRING
REFER TO ELECTRICAL DATA
TABLES TO SIZE THE DISCON-
NECT SWITCH, WIRING &
OVERCURRENT PROTECTION.
REFER TO ELECTRICAL DATA
TABLES TO SIZE THE DISCON-
NECT SWITCH, WIRING &
OVERCURRENT PROTECTION.
R
G
W
R
C
YY
W 2
C
W 1
O O
G
24 VOLT TRANSFORMER
UNIT TERMINAL STRIP
THERMOSTAT
CAUTION: Label all wires prior to disconnection when servicing controls. Wiring errors can
causeimproperanddangerousoperation.Verify proper operation after servicing.
** = Minimum wire size of 18 AWG
wire should be used for all field
installed 24 volt wire.
**
* = Only required on units with
supplemental electric heat.
*
CONTROL WIRING
NOTE:
HEAT ANTICIPATOR
SHOULD BE SET AT 0.25
AMPS FOR ALL MODELS.
PROGRAMMABLE
THERMOSTAT ONLY

Other manuals for York Champion Series

Related product manuals