EasyManua.ls Logo

York Predator ZF150 - ZF078-150 Unit Accessory Weights; ZF078-150 Unit Dimensions

York Predator ZF150
70 pages
To Next Page IconTo Next Page
To Next Page IconTo Next Page
To Previous Page IconTo Previous Page
To Previous Page IconTo Previous Page
Loading...
5167798-YTG-J-0218
62 Johnson Controls Unitary Products
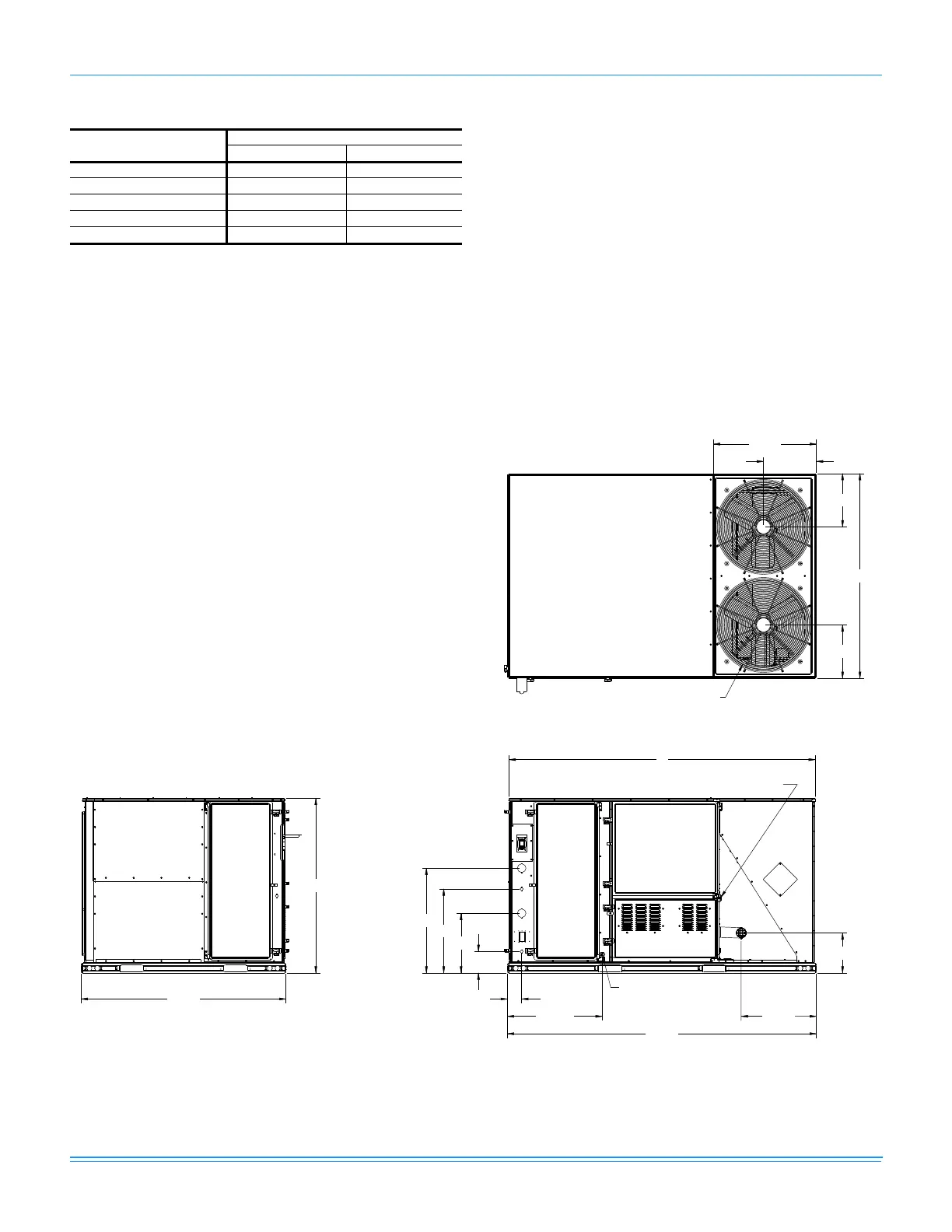
ZF078-150 Unit Dimensions
ZF078 - 120
ZF078-150 Unit Accessory Weights
Unit Accessory
Weight (lbs.)
Shipping Operating
Economizer 90 85
Power Exhaust 40 35
Electric Heat
1
1. Weight given is for the maximum heater size available
(54KW).
49 49
Gas Heat
2
2. Weight given is for the maximum number of tube heat
exchangers available (8 tube).
110 110
Variable Frequency Drive
3
3. Weight includes mounting hardware, controls and manual
bypass option (ZF Only).
30 30
LEFT
A
59.00
C
D
E
F
4.19
27.31
89.00
21.19
11.38
15.38
59.00
15.38
29.69
15.25
FRONT
SEE DETAIL B
FOR DRAIN LOCATION
SEE DETAIL A FOR GAS INLET
B
2X Ø 24.38

Table of Contents

Related product manuals