EasyManua.ls Logo

York Predator ZF150 - ZF078-150 Unit Physical Dimensions

York Predator ZF150
70 pages
To Next Page IconTo Next Page
To Next Page IconTo Next Page
To Previous Page IconTo Previous Page
To Previous Page IconTo Previous Page
Loading...
5167798-YTG-J-0218
Johnson Controls Unitary Products 63
ZF150
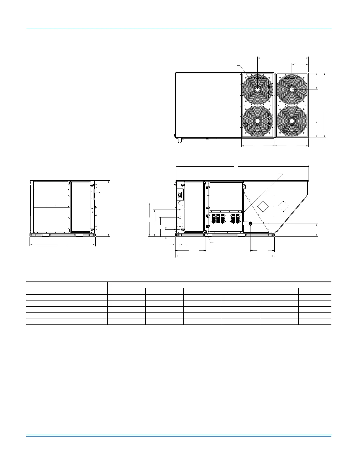
ZF078-150 Unit Physical Dimensions
Unit Model Number
Dimension (in.)
ABCDEF
078 42 89 22 1/8 18 3/16 15 3/16 6 3/16
090 42 89 22 1/8 18 3/16 15 3/16 6 3/16
102 50 3/4 89 30 3/16 24 3/16 17 3/16 6 3/16
120 50 3/4 89 30 3/16 24 3/16 17 3/16 6 3/16
150 50 3/4 119 1/2 30 3/16 24 3/16 17 3/16 6 3/16

Table of Contents

Related product manuals