EasyManua.ls Logo

York YMB - Page 5

York YMB
8 pages
Print Icon
To Next Page IconTo Next Page
To Next Page IconTo Next Page
To Previous Page IconTo Previous Page
To Previous Page IconTo Previous Page
Loading...
YORK INTERNATIONAL
4
FORM 115.20-NOM4 (105)
INSTALLATION
5
YORK INTERNATIONAL
INSTALLATION
FORM 115.20-NOM4 (105)
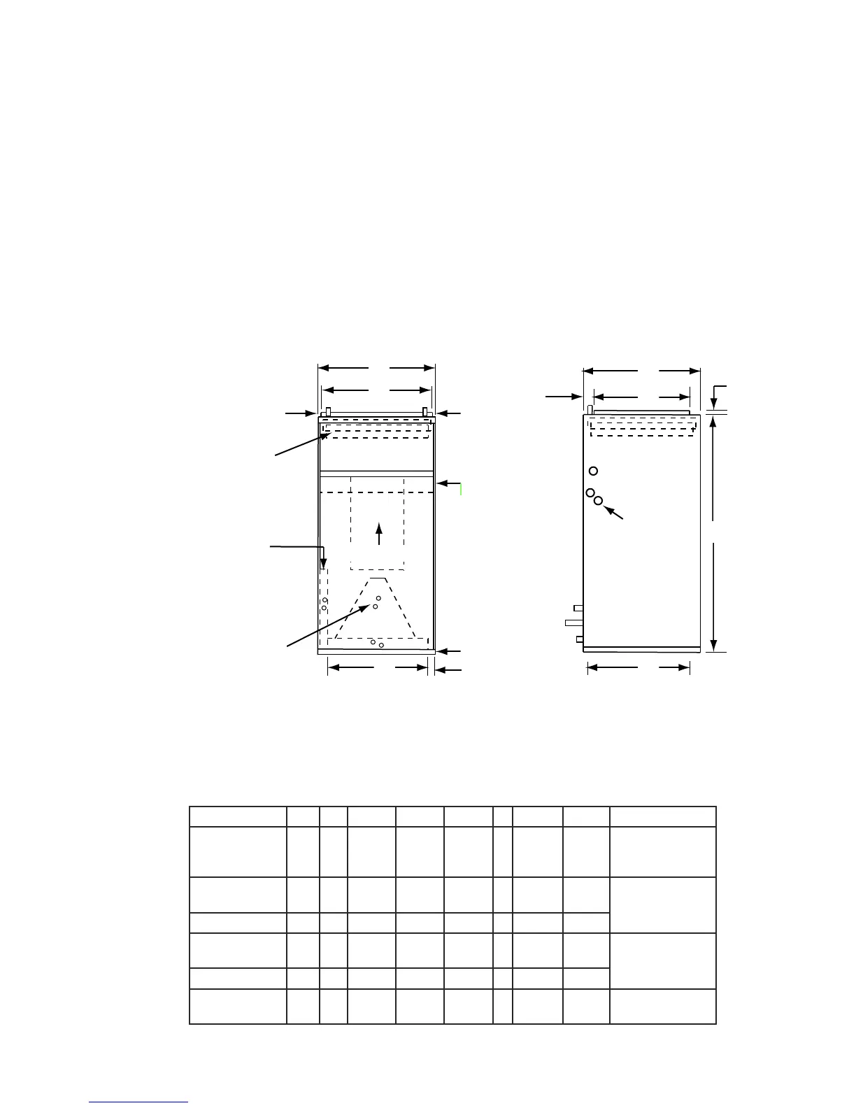
YMBE:
1) Factory installed electric heat
2) 208/240 volt Motor
3) 240/24 transformer
4) Circuit breaker disconnect (above 10 kW)
5) Manual air vent
6) Throwaway lter
7) Vertical / Horizontal drain pan (right-to left and left-to
right airow)
8) 277 available / 10 kW maximum
YMB, YMB-HW:
1) Separate cooling and heating coils (4 row cooling
coil)
2) 120V multi-speed motor.
3) Vertical / Horizontal drain pan (right-to left and left-to
right airow)
4) Manual air vent
5) Throw away lter
MODEL A B C D E F G H FILTER SIZE
8YMB
8YMB-HW
8YMBE
40 20 20 18-1/2 16 2 18 16 18 X 20 X 1
12YMB
10/12YMB-HW
42 23 20 21-1/2 16 2 18 19
20 X 22 X 1
12YMBE 42 23 20 21-1/2 16 2 18 17
16/20YMB
16YMB-HW
48 28 21-1/4 26-1/4 17-1/4 2 18 24
20 X 25 X 1
16/20YMBE 48 23 21-1/4 22-1/4 17 2 19-7/8 18-1/2
20YMB-HW 52 28 25-1/4 26-1/2 21-1/4 2 22 24 14 X 24 X 1
(2 REQUIRED)
TABLE 2 – PHYSICAL DIMENSIONS (INCHES)
DRAIN CONNECTION PRIMARY AND
SECONDARY DRAIN ARE 3/4" MPT
FIG. 5 – YMB, YMB-HW, YMBE DIMENSIONS
  
  
   








 
 

  
   
   


 
  





Related product manuals