EasyManua.ls Logo

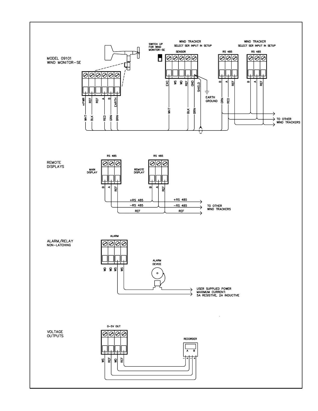
Young 06206 - System Wiring Diagrams; Model 09101 Wind Monitor-SE Connections; Remote Displays Wiring; Alarm;Relay Non-Latching Wiring

Young 06206
7 pages
Print Icon
To Previous Page IconTo Previous Page
To Previous Page IconTo Previous Page
Loading...
Page 6